EasyManua.ls Logo

Lennox FCA 60

Lennox FCA 60
142 pages
To Next Page IconTo Next Page
To Next Page IconTo Next Page
To Previous Page IconTo Previous Page
To Previous Page IconTo Previous Page
Loading...
Page 108 - IOM / ROOF-TOP FLEXY™ Series
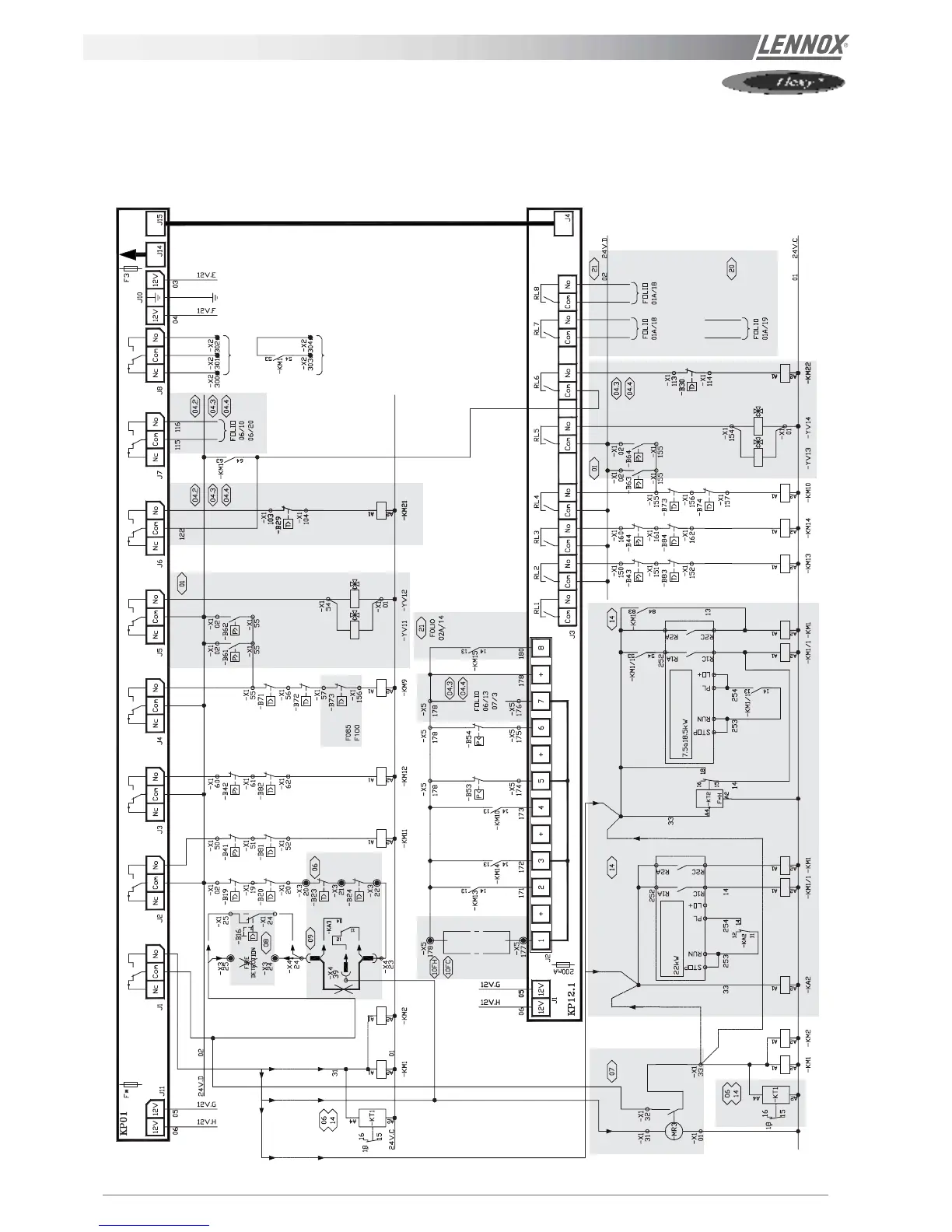
ELECTRICAL WIRING DIAGRAMS
ON
TRANSFER
STARTER
PROGRESSIVE
CLIMATIC OUTPUT FG / FD
ALARM
FAILURE
HU
STARTER