EasyManua.ls Logo

Lennox FCA 60

Lennox FCA 60
142 pages
To Next Page IconTo Next Page
To Next Page IconTo Next Page
To Previous Page IconTo Previous Page
To Previous Page IconTo Previous Page
Loading...
IOM / ROOF-TOP FLEXY™ Series - Page 111
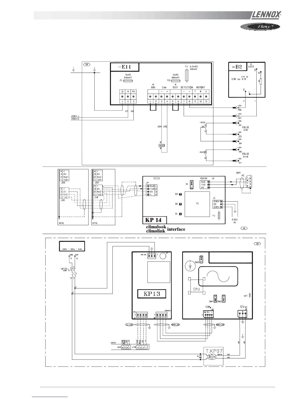
ELECTRICAL WIRING DIAGRAMS
DAD SMOKE DETECTOR / KP7 GRAPHIC DISPLAY
RESISTANCE
FEMELLE
UNITES
2,3,4,5,6,7,8
CUSTOMER
ELECTRICAL
TRANSFO
GRAPHIC CONTROL
DISPLAY
UNITE 1