EasyManua.ls Logo

Lennox SIGNATURE SLP99DFV - Optional Accessories for Communicating Systems

Lennox SIGNATURE SLP99DFV
71 pages
Print Icon
To Next Page IconTo Next Page
To Next Page IconTo Next Page
To Previous Page IconTo Previous Page
To Previous Page IconTo Previous Page
Loading...
Page 36
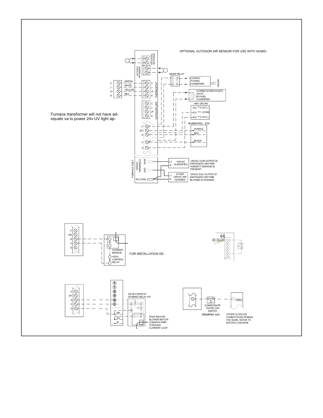
Optional Accessories for use with any Communicating System
NOTE: 24V UV LIGHT
APPLICATIONS
plications. An additional transformer
for UV light applications is required.
COMMUNICATING
THERMOSTAT
DISCHARGE AIR SENSOR
NOTE: THERMOSTAT SENSES HUMIDITY & CONTROLS 24V “H”
OUTPUT (& 120V “H” OUTPUT) TO CYCLE HUMIDIFIER BASED ON
DEMAND. NO OTHER CONTROL OR HUMIDISTAT REQUIRED.
IFIER (IF NOT ALREADY IN THE SYSTEM FOR OTHER
FUNCTIONS. BUILT INTO ALL COMMUNICATING OUTDOOR
UNITS).
COMMUNICATING
ENABLED FURNACE
HEPA BYPASS FILTER
X2680 HEPA
INTERLOCK KIT
PASS INDOOR BLOWER
MOTOR COMMON WIRE
THROUGH CURRENT LOOP.
SEE HEPA INTERLOCK KIT
TAILS
LVCS VENTILATION
CONTROL SYSTEM
SEE LVCS VENTILATION
INSTRUCTIONS FOR
DAMPER & SENSOR WIRING
NON-COMMUNICATING
1 OR 2 STAGE AC OR HP UNIT
COMMUNICATING
ENABLED FURNACE
(C)
(C)
door unit only)
COMMUNICATING
ENABLED FURNACE
COMMUNICATING
ENABLED FURNACE
CUT*
R−DS
W914
DS
R
LENNOX COMMUNICATING FURNACE
EL296V, SL280V, SL280VN, SL297V, SLP99V
cutting DS to R will not cause
communication interuption
or error code
FIGURE 48

Related product manuals