EasyManua.ls Logo

Lenze E82EV113K4C - Fig. 5.6-4 Dimensions for Thermally Separated Mounting 45

Lenze E82EV113K4C
588 pages
Print Icon
To Next Page IconTo Next Page
To Next Page IconTo Next Page
To Previous Page IconTo Previous Page
To Previous Page IconTo Previous Page
Loading...
Basic units in the power range 45 ... 55 kW
Thermally separated mounting (push-through technique)
5
Basic device installation
5.6
5.6.4
L
5.6-4
EDS82EV903-1.0-11/2002
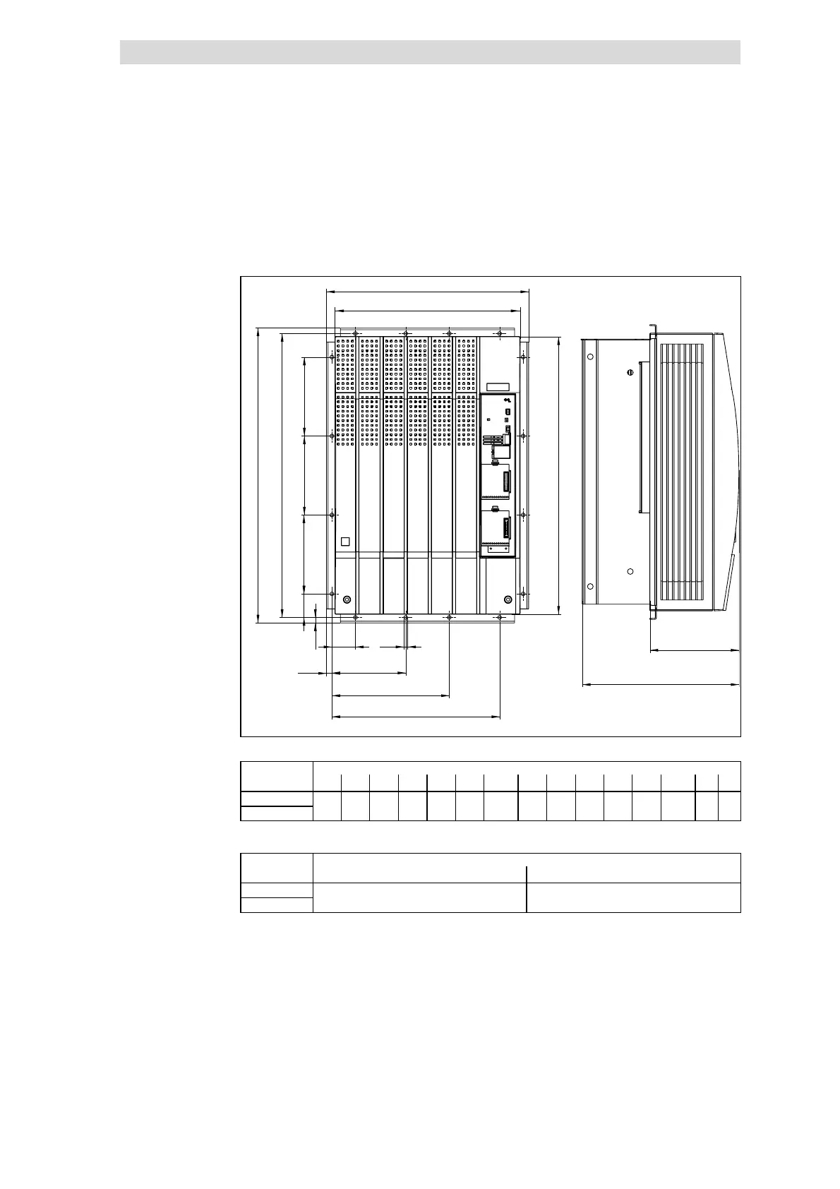
5.6.4 Thermally separated mounting (push-through technique)
For mounting in push-through technique use the controller type E82 D V... . The
delivery package includes all parts and components required for mounting.
d2
d2
d2
d
b
g
a1
a
d1
b1
h
h
c1
c2
c3
c4
e
e1
8200vec302
Fig. 5.6-4 Dimensions for thermally separated mounting 45 ... 55 kW
Dimensions [mm]
8200 vector a a1 b b1 c1 c2 c3 c4 d d1 d2 e e1 g h
E82DV453K4B
3
7
3
3
4
0
5
4
3
5
1
0
4
5
9
2
5
1
7
2
5
2
6
5
5
2
5
4
5
1
4
5
2
8
5
1
6
3
5
7
9
E82DV553K4B
373 340 543 510 45 92.5 172.5 265 525 45 145 285 163.5 7 9
Mounting cutout in the control cabinet
Dimensions [mm]
8200 vector a a1
E82DV453K4B
3
7
3
3
4
0
E82DV553K4B
373 340
Show/Hide Bookmarks

Table of Contents

Related product manuals