EasyManua.ls Logo

Lenze E82EV113K4C - Fig. 5.4-1 Standard Mounting with Fixing Rails 3; Mounting with Fixing Rails (Standard)

Lenze E82EV113K4C
588 pages
Print Icon
To Next Page IconTo Next Page
To Next Page IconTo Next Page
To Previous Page IconTo Previous Page
To Previous Page IconTo Previous Page
Loading...
Basic units in the power range 3 ... 11 kW
Mounting with fixing rails (standard)
5
Basic device installation
5.4
5.4.1
L
5.4-1
EDS82EV903-1.0-11/2002
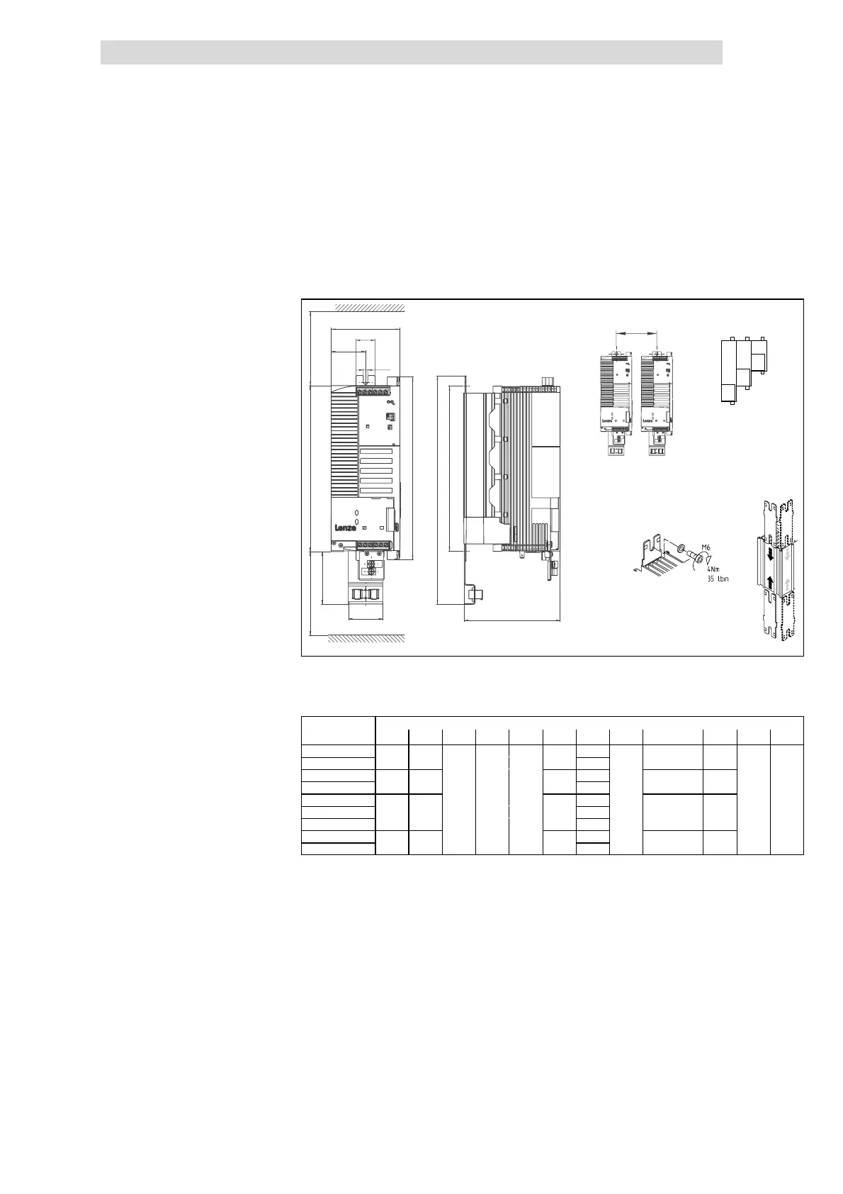
5.4 Basic units in the power range 3 ... 11 kW
5.4.1 Mounting with fixing rails (standard)
0
c1
d
b
e
b1
b3
b2
c2
g
c
k
a
> 100 mm
> 100 mm
8200vec060
Fig. 5.4-1 Standard mounting with fixing rails 3 ... 11 kW
0
Different sizes can only be mounted side by side when the smaller units are
mounted to the right-hand-side of the bigger units!
Dimensions in mm
8200 vector a b b1 b2 b3 c c1 c2 d e g k
E82EV302K2C
1
0
0
3
3
3
5
0
103
2
5
5
1
4
0
E82EV402K2C
100 333 50
103
255 140
E82EV552K2C
1)
1
2
5
333
6
2
5
128
255 140
E82EV752K2C
1)
125
3
3
3
359
2)
62.5
128
2
5
5
280 ... 295
2)
1
4
0
162
2)
E82EV302K4C
268 240 78
103
50 6.5 28
E82EV402K4C
100 333
2
6
8
2
4
0
7
8
50
103
5
0
255 140
6
.
5
2
8
E82EV552K4C
1
0
0
3
3
3
5
0
103
2
5
5
1
4
0
E82EV752K4C
1)
1
2
5
333
6
2
5
128
255 140
E82EV113K4C
1)
125
3
3
3
359
2)
62.5
128
2
5
5
280 ... 295
2)
1
4
0
162
2)
1) Side mounting only possible with swivel holding unit E82ZJ006 (accessories)
2) with E82ZJ006
8200 vector 3 ... 11 kW
Show/Hide Bookmarks

Table of Contents

Related product manuals