EasyManua.ls Logo

Lenze E82EV113K4C - Fig. 5.4-2 Dimensions for Thermally Separated Mounting 3; Thermally Separated Mounting (Push-Through Technique)

Lenze E82EV113K4C
588 pages
Print Icon
To Next Page IconTo Next Page
To Next Page IconTo Next Page
To Previous Page IconTo Previous Page
To Previous Page IconTo Previous Page
Loading...
Basic units in the power range 3 ... 11 kW
Thermally separated mounting (push-through technique)
5
Basic device installation
5.4
5.4.2
L
5.4-2
EDS82EV903-1.0-11/2002
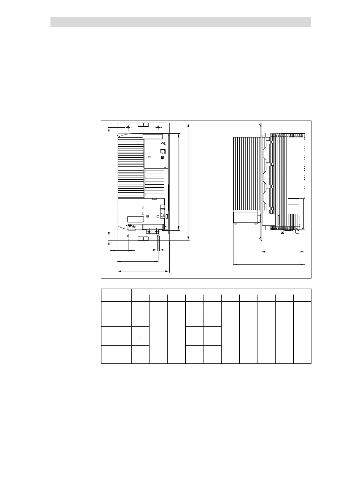
5.4.2 Thermally separated mounting (push-through technique)
For mounting in push-through technique use the controller type E82 D V... . The
delivery package includes all parts and components required for mounting.
c1
c2
g
a
d
b1
b
h
e1
e
8200vec327
Fig. 5.4-2 Dimensions for thermally separated mounting 3 ... 11 kW
Dimensions [mm]
8200 vector a b b1 c1 c2 d e e1 g h
E82DV302K2C
1
0
0
2
5
7
5
E82DV402K2C
100 25 75
E82DV552K2C
1
3
0
2
7
5
1
0
2
5
E82DV752K2C
130 27.5 102.5
E82DV302K4C
2
9
2
2
4
0
2
7
0
1
7
8
1
0
9
5
5
1
1
E82DV402K4C 100
2
9
2
2
4
0
25 75
2
7
0
1
7
8
1
0
9
.5 5
1
1
E82DV552K4C
1
0
0
2
5
7
5
E82DV752K4C
E82DV113K4C 130 27.5 102.5
8200 vector 3 ... 11 kW
Show/Hide Bookmarks

Table of Contents

Related product manuals