EasyManua.ls Logo

Lenze E82EV113K4C - Mounting with Fixing Brackets and Mains Choke (Standard); Basic Units in the Power Range 75

Lenze E82EV113K4C
588 pages
Print Icon
To Next Page IconTo Next Page
To Next Page IconTo Next Page
To Previous Page IconTo Previous Page
To Previous Page IconTo Previous Page
Loading...
Basic units in the power range 75 ... 90 kW
Mounting with fixing brackets and mains choke (standard)
5
Basic device installation
5.7
5.7.1
L
5.7-1
EDS82EV903-1.0-11/2002
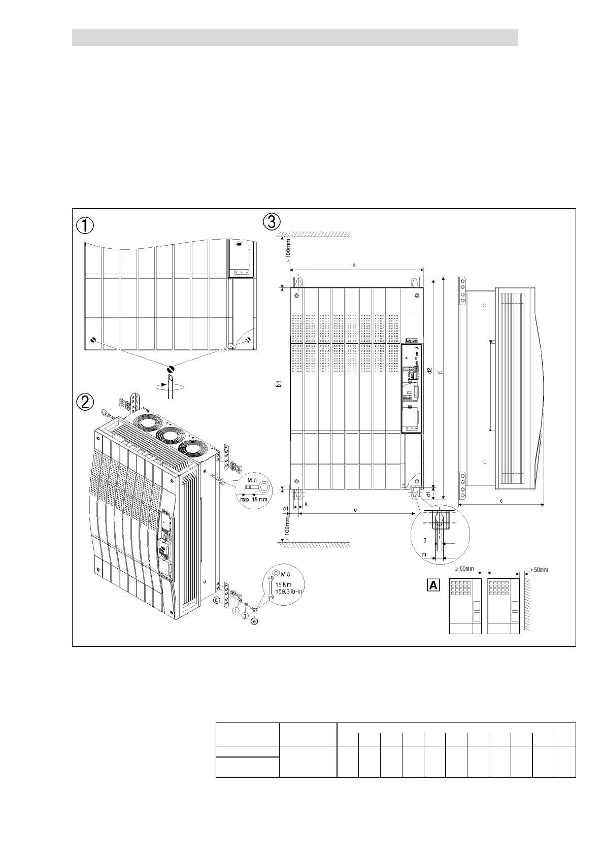
5.7 Basic units in the power range 75 ... 90 kW
5.7.1 Mounting with fixing brackets and mains choke (standard)
8200vec273
Fig. 5.7-1 Standard mounting with mains choke 75 ... 90 kW
Loosebothscrewsinordertoremovethehousingcover.
Mounting of the fixing brackets
Dimensions
0
Mount the drive controllers side by side leaving a certain space for dismounting
the lifting-eye bolt.
Dimensions [mm]
8200 vector Mains choke a b1 c c1 d d1 d2 e g k m
E82EV753K4B2x1
E82EV903K4B2x1
ELN3-0017H170 450 680 395 30.5 750 38 702 285 11 28 18
Show/Hide Bookmarks

Table of Contents

Related product manuals