EasyManua.ls Logo

Lenze E94AZMP0294 - Plantilla de Sujeción

Lenze E94AZMP0294
Print Icon
To Next Page IconTo Next Page
To Next Page IconTo Next Page
To Previous Page IconTo Previous Page
To Previous Page IconTo Previous Page
Loading...
Instalación mecánica
Plantilla de sujeción
5
103
EDK94AZMP DE/EN/FR/ES/IT 8.0
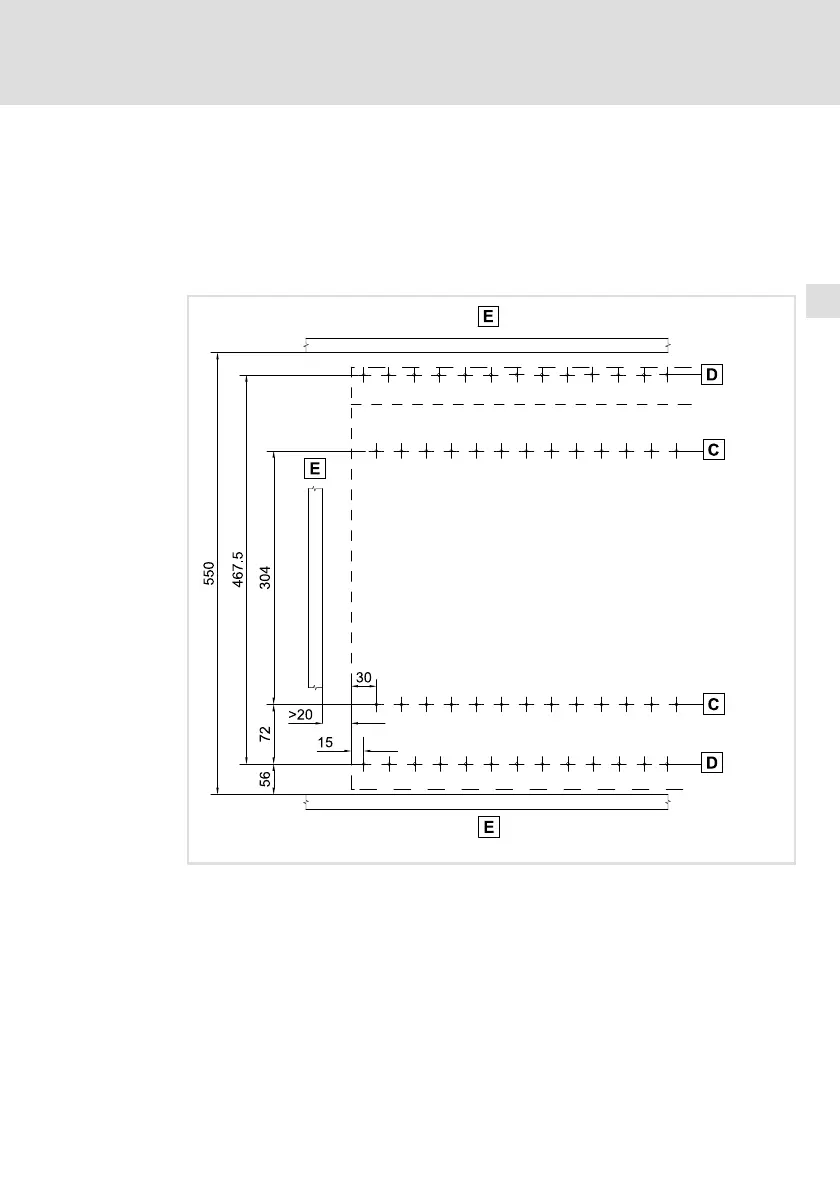
5.3 Plantilla de sujeción
Uso con 9400
Para la fijación de los equipos recomendamos colocar un patrón de taladros
roscados M5 en la placa de montaje. Con esta preparación es muy fácil fijar los
equipos. De esta forma es posible colocar los tamaños de equipo 1, 2, ... n
directamente uno al lado del otro.
SSP94NF311
Fig.5−3 Dimensiones [mm]
Patrón perforado para base de montaje (tamaño de equipo 1 hasta 3)
Patrón perforado para otros tamaños de equipo o filtros en montaje inferior (sólo
Single Drive)
Canal para cables
Uso con i700
El uso de la serie i700 con plantilla de orificios de fijación no es posible. Los
orificios de fijación deberán efectuarse siguiendo el plano de medidas y a la
izquierda junto al módulo de alimentación E70ACPS.

Table of Contents

Related product manuals