EasyManua.ls Logo

Lenze E94AZMP0294 - Griglia DI Fissaggio

Lenze E94AZMP0294
Print Icon
To Next Page IconTo Next Page
To Next Page IconTo Next Page
To Previous Page IconTo Previous Page
To Previous Page IconTo Previous Page
Loading...
Installazione meccanica
Griglia di fissaggio
5
130
EDK94AZMP DE/EN/FR/ES/IT 8.0
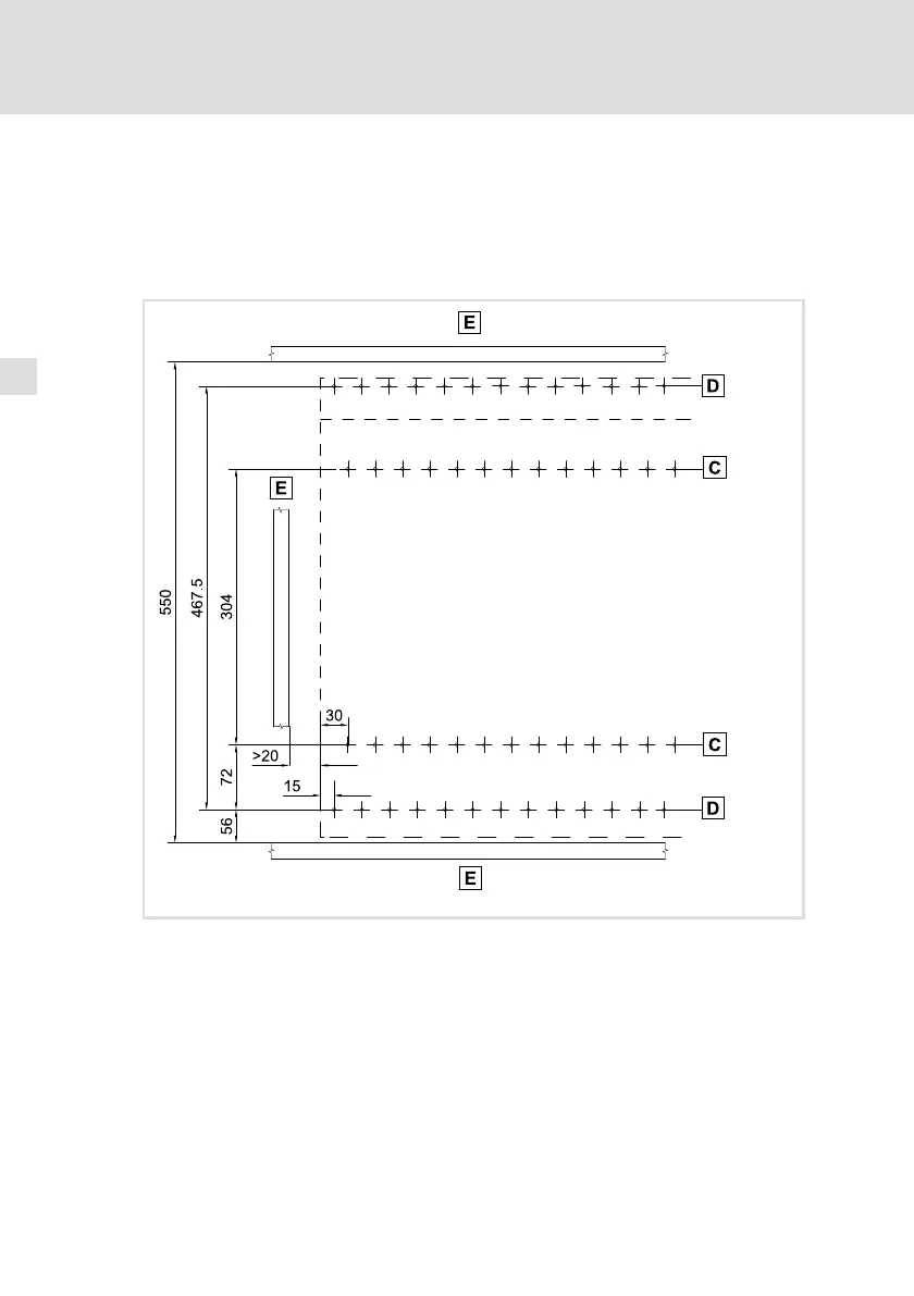
5.3 Griglia di fissaggio
Utilizzo con 9400
Raccomandiamo di preparare la piastra di montaggio riportando la griglia dei
fori di fissaggio M5 dell’apparecchiatura. In tal modo sarà più semplice fissare
i dispositivi. Le taglie 1, 2, ... n possono così essere installate una dietro l’altra.
SSP94NF311
Fig.5−3 Dimensioni [mm]
Griglia con fori per base di montaggio (taglie da 1 a 3)
Griglia con fori per altre taglie o filtri con montaggio a sotto (solo Single Drive)
Canalina per cavi
Utilizzo con i700
In caso di utilizzo con la serie i700 non è possibile il fissaggio a griglia con fori.
I fori di fissaggio vanno posizionati come da disegno dimensionale sulla sinistra,
vicino al modulo alimentatore E70ACPS....

Table of Contents

Related product manuals