EasyManua.ls Logo

Lenze E94AZMP0294 - Mechanical Data

Lenze E94AZMP0294
Print Icon
To Next Page IconTo Next Page
To Next Page IconTo Next Page
To Previous Page IconTo Previous Page
To Previous Page IconTo Previous Page
Loading...
Technical data
Mechanical data
4
43
EDK94AZMP DE/EN/FR/ES/IT 8.0
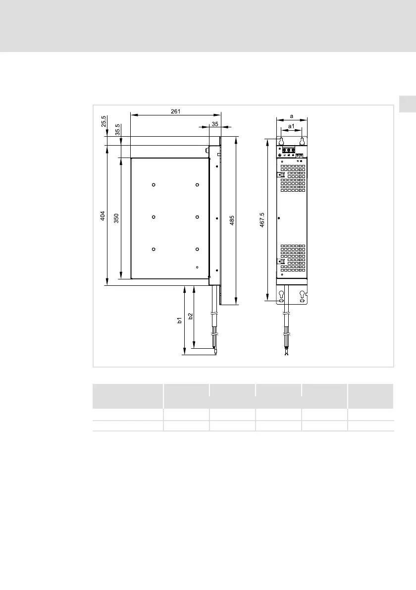
4.3 Mechanical data
Use with 9400
SSP94NF102
Fig. 4−1 Dimensions [mm]
a a1 b1 b2 Mass
[mm] [kg]
E94AZMP0084 90 60 360 ±5 350 ±5 8.6
E94AZMP0294 120 90 430 ±5 420 ±5 16.0

Table of Contents

Related product manuals