EasyManua.ls Logo

Lenze E94AZMP0294 - Mechanische Daten

Lenze E94AZMP0294
Print Icon
To Next Page IconTo Next Page
To Next Page IconTo Next Page
To Previous Page IconTo Previous Page
To Previous Page IconTo Previous Page
Loading...
Technische Daten
Mechanische Daten
4
15
EDK94AZMP DE/EN/FR/ES/IT 8.0
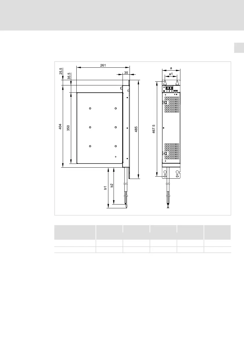
4.3 Mechanische Daten
Verwendung mit 9400
SSP94NF102
Abb. 4−1 Abmessungen [mm]
a a1 b1 b2 Masse
[mm] [kg]
E94AZMP0084 90 60 360 ±5 350 ±5 8.6
E94AZMP0294 120 90 430 ±5 420 ±5 16.0

Table of Contents

Related product manuals