EasyManua.ls Logo

Lenze E94AZMP0294 - Dati Meccanici

Lenze E94AZMP0294
Print Icon
To Next Page IconTo Next Page
To Next Page IconTo Next Page
To Previous Page IconTo Previous Page
To Previous Page IconTo Previous Page
Loading...
Dati tecnici
Dati meccanici
4
125
EDK94AZMP DE/EN/FR/ES/IT 8.0
4.3 Dati meccanici
Utilizzo con 9400
SSP94NF102
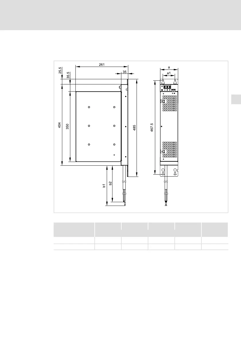
Fig.4−1 Dimensioni [mm]
a a1 b1 b2 Massa
[mm] [kg]
E94AZMP0084 90 60 360 ±5 350 ±5 8.6
E94AZMP0294 120 90 430 ±5 420 ±5 16.0

Table of Contents

Related product manuals