EasyManua.ls Logo

Lenze E94AZMP0294 - Page 126

Lenze E94AZMP0294
Print Icon
To Next Page IconTo Next Page
To Next Page IconTo Next Page
To Previous Page IconTo Previous Page
To Previous Page IconTo Previous Page
Loading...
Dati tecnici
Dati meccanici
4
126
EDK94AZMP DE/EN/FR/ES/IT 8.0
Utilizzo con i700
SSP94NF002i7
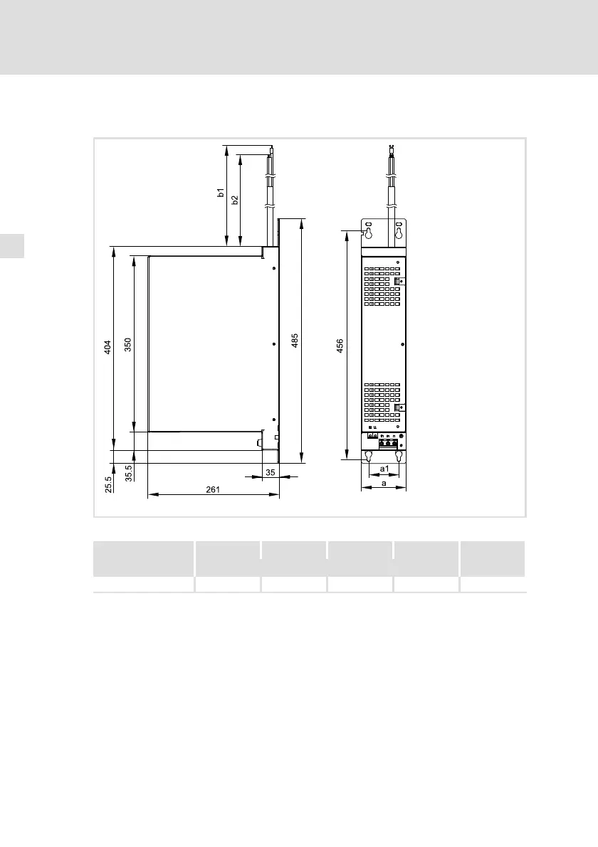
Fig.4−2 Dimensioni [mm]
a a1 b1 b2 Massa
[mm] [kg]
E94AZMP0294 120 90 430 ±5 420 ±5 16.0

Table of Contents

Related product manuals