EasyManua.ls Logo

Lenze E94AZMP0294 - Page 99

Lenze E94AZMP0294
Print Icon
To Next Page IconTo Next Page
To Next Page IconTo Next Page
To Previous Page IconTo Previous Page
To Previous Page IconTo Previous Page
Loading...
Datos técnicos
Datos mecánicos
4
99
EDK94AZMP DE/EN/FR/ES/IT 8.0
Uso con i700
SSP94NF002i7
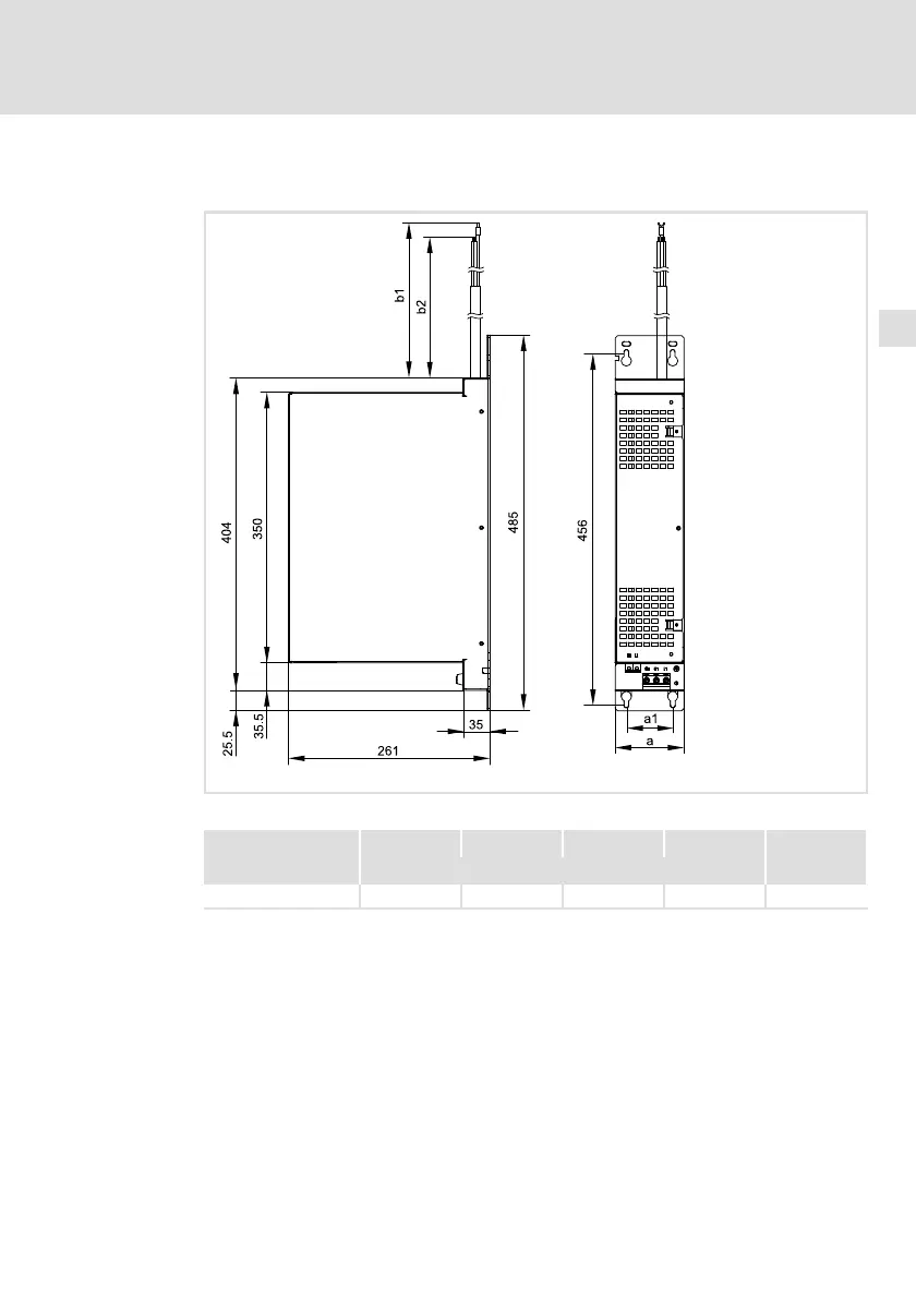
Fig.4−2 Dimensiones [mm]
a a1 b1 b2 Masa
[mm] [kg]
E94AZMP0294 120 90 430 ±5 420 ±5 16.0

Table of Contents