EasyManua.ls Logo

Lenze I95AE222F

Lenze I95AE222F
184 pages
Go to English
To Next Page IconTo Next Page
To Next Page IconTo Next Page
To Previous Page IconTo Previous Page
To Previous Page IconTo Previous Page
Loading...
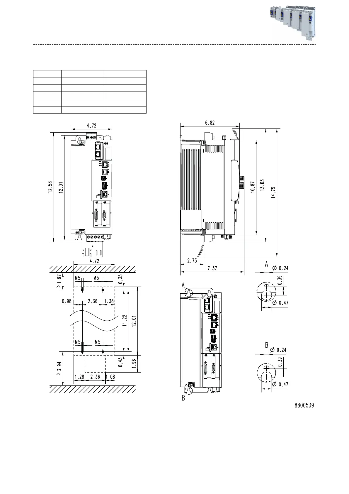
5 hp ... 20 hp
The dimensions in inch apply to:
5 hp I95AE240C
7.5 hp I95AE255C
10 hp I95AE275F
15 hp I95AE311F
20 hp I95AE315F
Weight 8.6 lb 8.6 lb
Mechanical ins
tallaon
Dimensions
118

Table of Contents

Related product manuals