EasyManua.ls Logo

LG MULTI V IV ARUN072BTE4 - Page 32

LG MULTI V IV ARUN072BTE4
132 pages
Print Icon
To Next Page IconTo Next Page
To Next Page IconTo Next Page
To Previous Page IconTo Previous Page
To Previous Page IconTo Previous Page
Loading...
33
Product Data
Due to our policy of continuous product innovation, some specifications may change without notification.
©LG Electronics U.S.A., Inc., Englewood Cliffs, NJ. All rights reserved. “LG” is a registered trademark of LG Corp.
ARUN096BTE4, ARUN121BTE4 208-230V
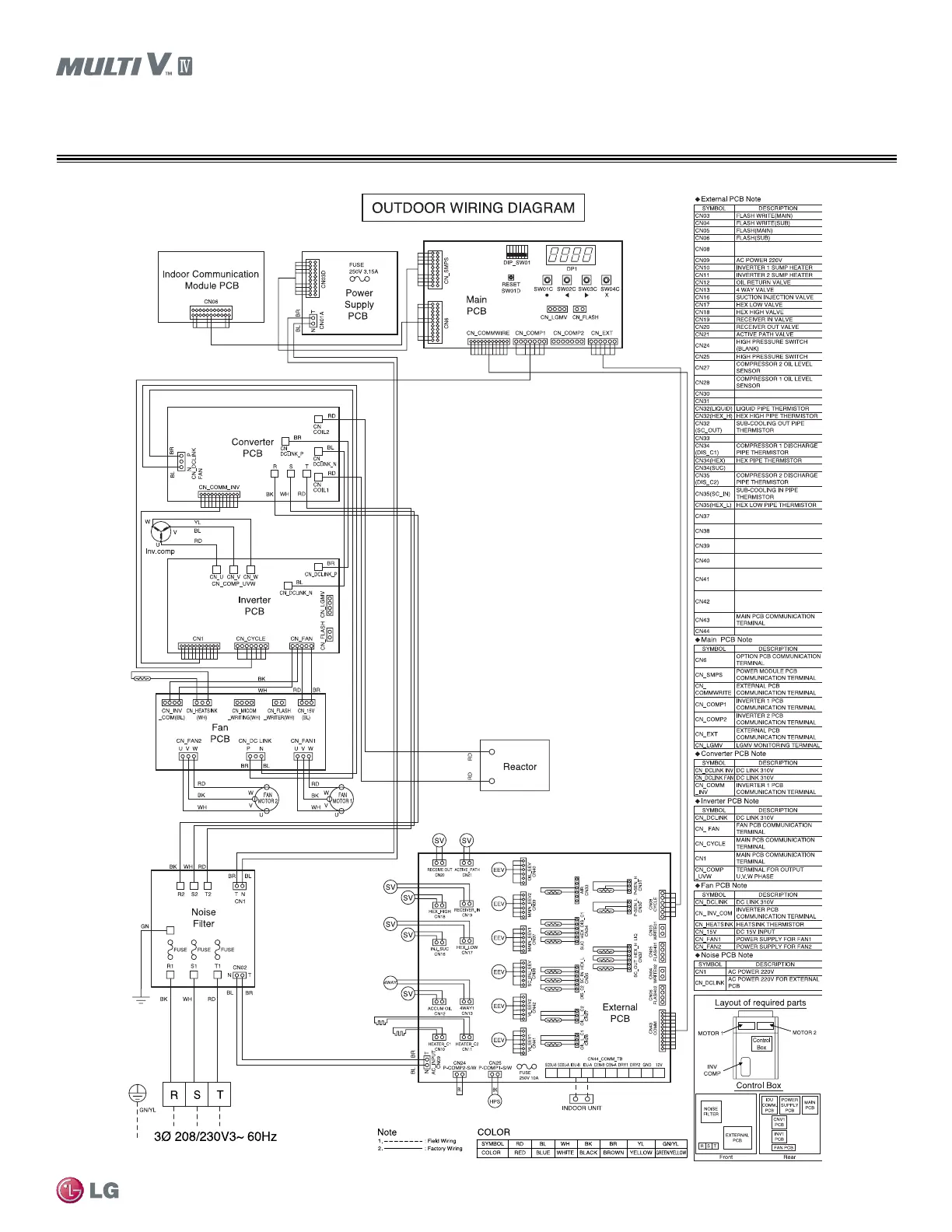
HEAT PUMP WIRING DIAGRAMS
TERMINAL BLOCK
VAPOR INJECTION ELECTRONIC
EXPANSION VALVE 2
VAPOR INJECTION ELECTRONIC
EXPANSION VALVE 1
OIL BALANCE ELECTRONIC
EXPANSION VALVE
MAIN ELECTRONIC EXPANSION
VALV E 2
SUB-COOLING ELECTRONIC
EXPANSION VALVE
MAIN ELECTRONIC EXPANSION
VALV E 1
SUCTION PIPE THERMISTOR
LOW PRESSURE SENSOR
HIGH PRESSURE SENSOR
MAIN PCB COMMUNICAT ION
TERMINAL
OUTDOOR AIR THERMISTOR

Related product manuals