EasyManua.ls Logo

LG MULTI V IV ARUN072BTE4 - Page 34

LG MULTI V IV ARUN072BTE4
132 pages
Print Icon
To Next Page IconTo Next Page
To Next Page IconTo Next Page
To Previous Page IconTo Previous Page
To Previous Page IconTo Previous Page
Loading...
35
Product Data
Due to our policy of continuous product innovation, some specifications may change without notification.
©LG Electronics U.S.A., Inc., Englewood Cliffs, NJ. All rights reserved. “LG” is a registered trademark of LG Corp.
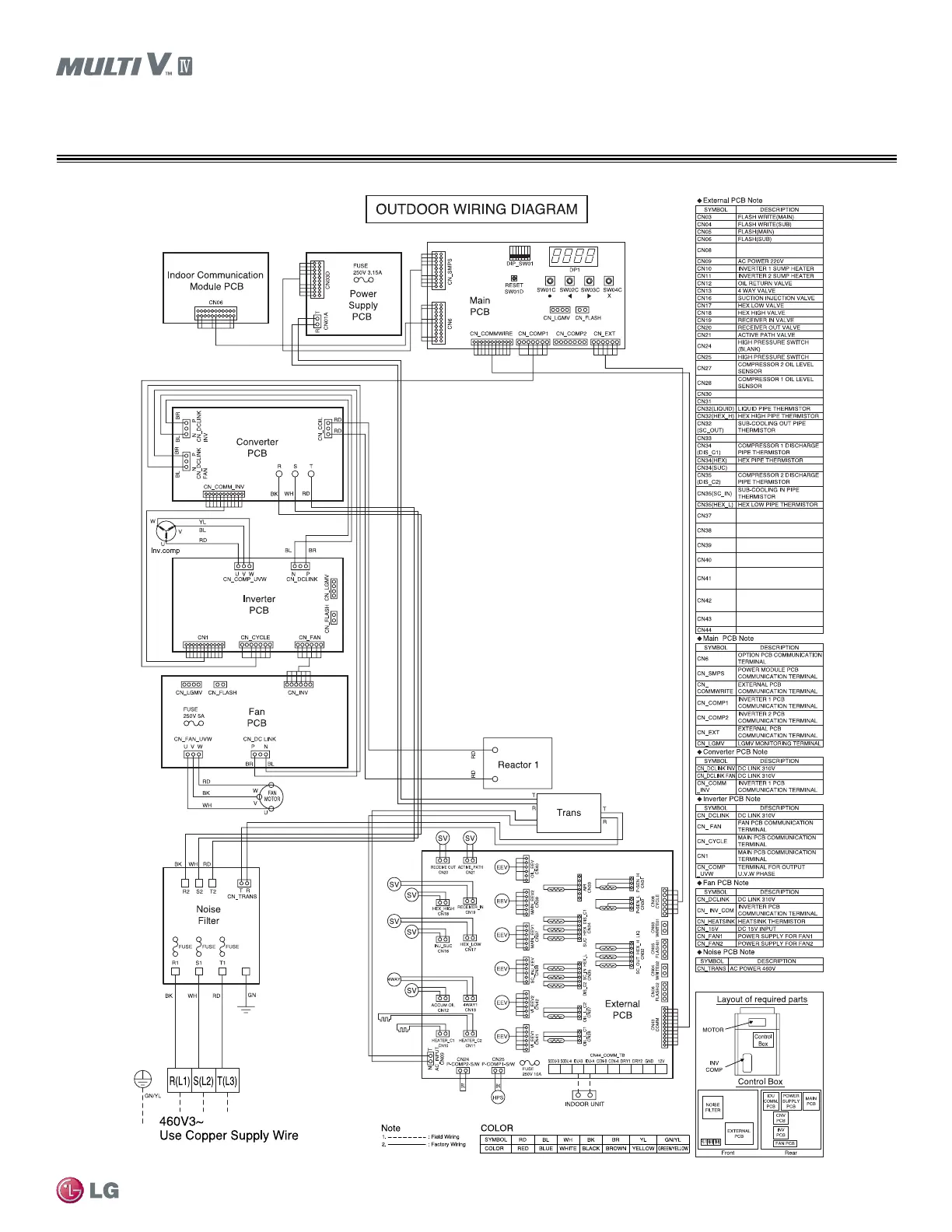
HEAT PUMP WIRING DIAGRAMS
ARUN072DTE4 460V
MAIN PCB COMMUNICAT ION
TERMINAL
SUB-COOLING ELECTRONIC
EXPANSION VALVE
MAIN ELECTRONIC EXPANSION
VALV E 2
OIL BALANCING ELECTRONIC
EXPANSION VALVE
VAPOR INJECTION ELECTRONIC
EXPANSION VALVE 1
VAPOR INJECTION ELECTRONIC
EXPANSION VALVE 2
MAIN PCB COMMUNICATION
TERMINAL
LOW PRESSURE SENSOR
HIGH PRESSURE SENSOR
OUTDOOR AIR THERMISTOR
SUCTION PIPE THERMISTOR
MAIN ELECTRONIC
EXPANSION VALVE 1
TERMINAL BLOCK

Related product manuals