EasyManua.ls Logo

Lull 944E-42 - Page 51

Default Icon
266 pages
Print Icon
To Next Page IconTo Next Page
To Next Page IconTo Next Page
To Previous Page IconTo Previous Page
To Previous Page IconTo Previous Page
Loading...
3-21
944E-42
Boom
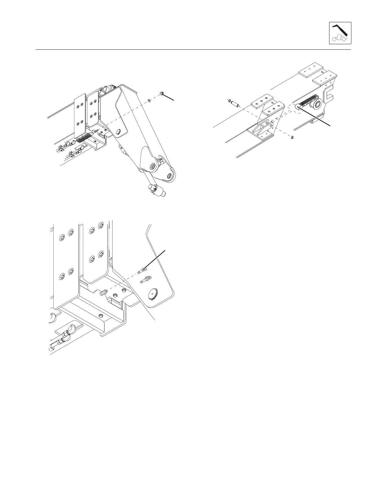
5. At the front underside of the boom, record the
amount of threads extending beyond the locknut.
This measurement will be the starting point for
adjustment of the boom retract chain.
6. Remove the locknut (9) and washer securing the
retract chain to the boom.
7. Attach a wire or string to the threaded clevis with a
threaded eye (10) or a flat washer tack welded to a
capscrew. The outside diameter of the eye or flat
washer must be smaller than the diameter of the
threads on the clevis. The wire or string will be used
to pull the chain back through the boom during
reassembly.
8. Disconnect the retract chain yoke (11) from the rear
of the third boom section. Lay the chain assembly
flat behind the boom.
9. From the rear of the boom, pull the retract chain out
of the boom. Remove the wire from the clevis, but
not from the inside of the boom.
10. Inspect wear and condition of the booms, chains,
clevis’, chain sheaves, extend/retract cylinder, chain
rods, clevis anchors and all mounting hardware.
Replace a worn or damaged chain. DO NOT attempt
to make any repairs to the chain.
Note: Chains and clevis’ are wear items and experience
the same stress. DO NOT attempt to repair a chain.
Replace a stretched or damaged chain with a new part.
11. Attach the wire to the new retract chain.
12. From the rear of the boom, push the threaded clevis
end of the retract chain under the chain sheave and
down between the second and first boom sections.
Have an assistant pull the string or wire from the
front of the boom.
13. Guide the clevis through the hole in the tab at the
front of the boom.
14. Install the retract chain yoke on the rear of the third
boom section.
15. Remove the string or wire from the end of the clevis.
16. Secure the clevis with a locknut and washer. Tighten
the locknut on the retract chain clevis until the
amount of threads protruding beyond the locknut is
the same as the measurement recorded during
removal of the retract chain.
17. Check and adjust retract chain tension. Refer to
Section 3.4.5, “Boom Chain Tension Check.
18. Install the boom rear cover.
19. Properly connect the battery.
MU1411
9
MU3901
10
MU1211
11

Table of Contents