EasyManua.ls Logo

MAKELSAN PowerPack SE 3 kVA - UPS Rear Panel View; The Type of 220 V (Output Could be 208 V, 220 V, 230 V, 240 V)

Default Icon
52 pages
Print Icon
To Next Page IconTo Next Page
To Next Page IconTo Next Page
To Previous Page IconTo Previous Page
To Previous Page IconTo Previous Page
Loading...
UDD-SD-116/ Release Date: 31.12.2014/Rev No: 1/Rev. Date: 27.04.2015 8
NOTE
Please save the packaging box and packaging materials for future transport use. As a heavy
product, please transit the UPS with care.
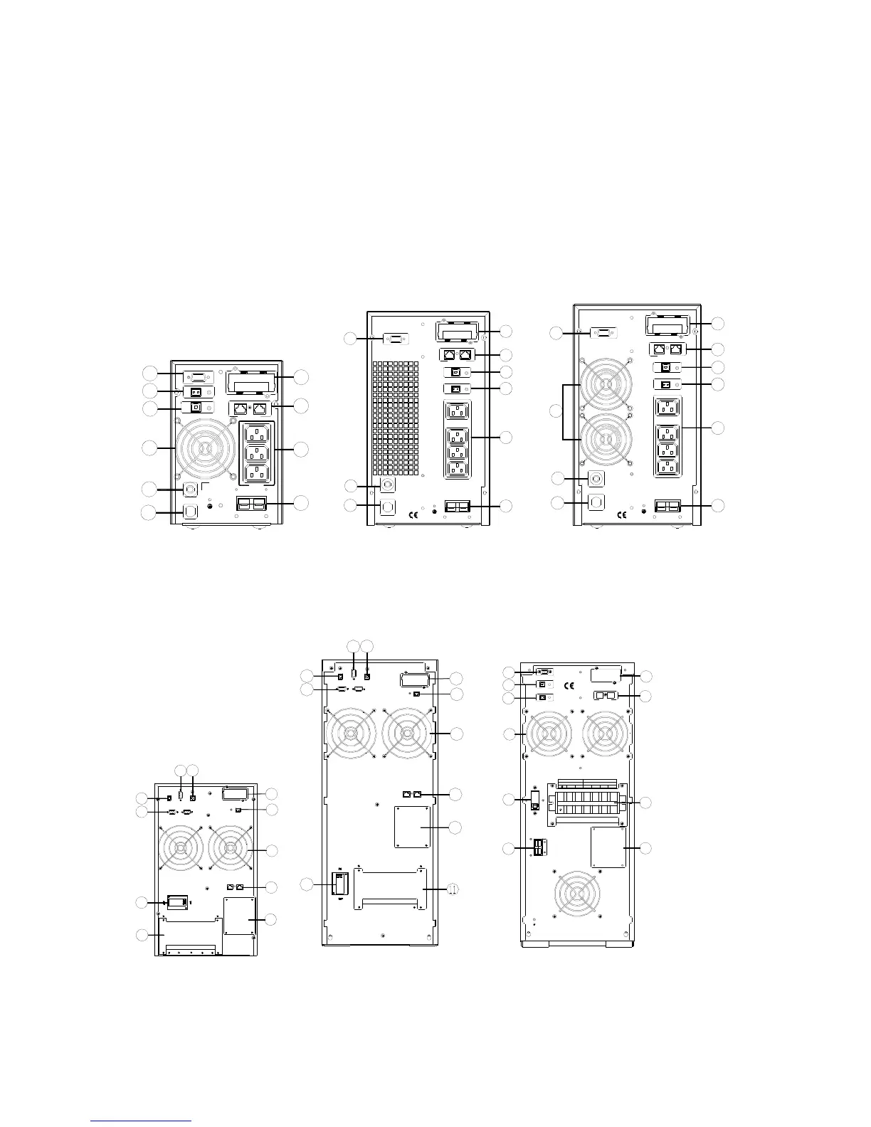
2.2 UPS Rear Panel View
2.2.1 The Type of 220V (output could be 208V, 220V, 230V, 240V)
RS232
EPO
USB
TEL/MODEM/FAX
IN
OUT
OUTPUT
RESET
FUSE 250VAC
INPUT
-+
36VDC 30A
EXT.BATTERY
2
1
3
5
6
4
8
7
10
9
TEL/MODEM/FAX
OUTIN
USB
EPO
OUTPUT SOCKET
RS232
-+-+
72VDC 30A
EXT.BATTERY
-+-+
RESET
FUSE 250VAC
INPUT
2
1
6
8
10
7
4
5
9
TEL/MODEM/FAX
OUTIN
USB
EPO
OUTPUT SOCKET
RS232
-
+
-
+
96VDC 30A
EXT.BATTERY
RESET
FUSE 250VAC
INPUT
-+-+
2
1
6
8
10
7
4
5
9
3
a. 0.9PF 1KVA rear panel b. 0.9PF 1.5KVA&2KVA rear panel c. 0.9PF 3KVA rear panel
11
2
5
4
6
13
3
8
7
12
14
5
4
6
13
2
3
8
7
12
14
INPUT BREAKER
80A 250VAC
ON
OFF
TEL/MOD EM/FAX
INTELLIGENT SLOT
-+-+
192VDC
EXT.BATTERY
DO NOT OPEN EXCEPT
QUALIFIED TECHNICIAN
RS232
USB
EPO
N L L2 N2
INPUT
OUTPUT
WARNING
HIGH LEAKAGE CURRENT
EARTH CONNECTION ESSENTIAL
BEFORE CONNECTING SUPPLY
~~
L1 N1
N
LL2
N2L1 N1
9
12
11
8
7
6
5
4
3
2
d. 6KVA &10KVA Long back up e. 6KVA & 10KVA Standard type f . 0.8/0.9PF 6/10KVA with ISO

Related product manuals