EasyManua.ls Logo

Manitou Privilege MRT 3255 PLUS - Page 270

Manitou Privilege MRT 3255 PLUS
302 pages
Print Icon
To Next Page IconTo Next Page
To Next Page IconTo Next Page
To Previous Page IconTo Previous Page
To Previous Page IconTo Previous Page
Loading...
3-96
IT
EN
648870 IT-EN-PL (04/05/2015)
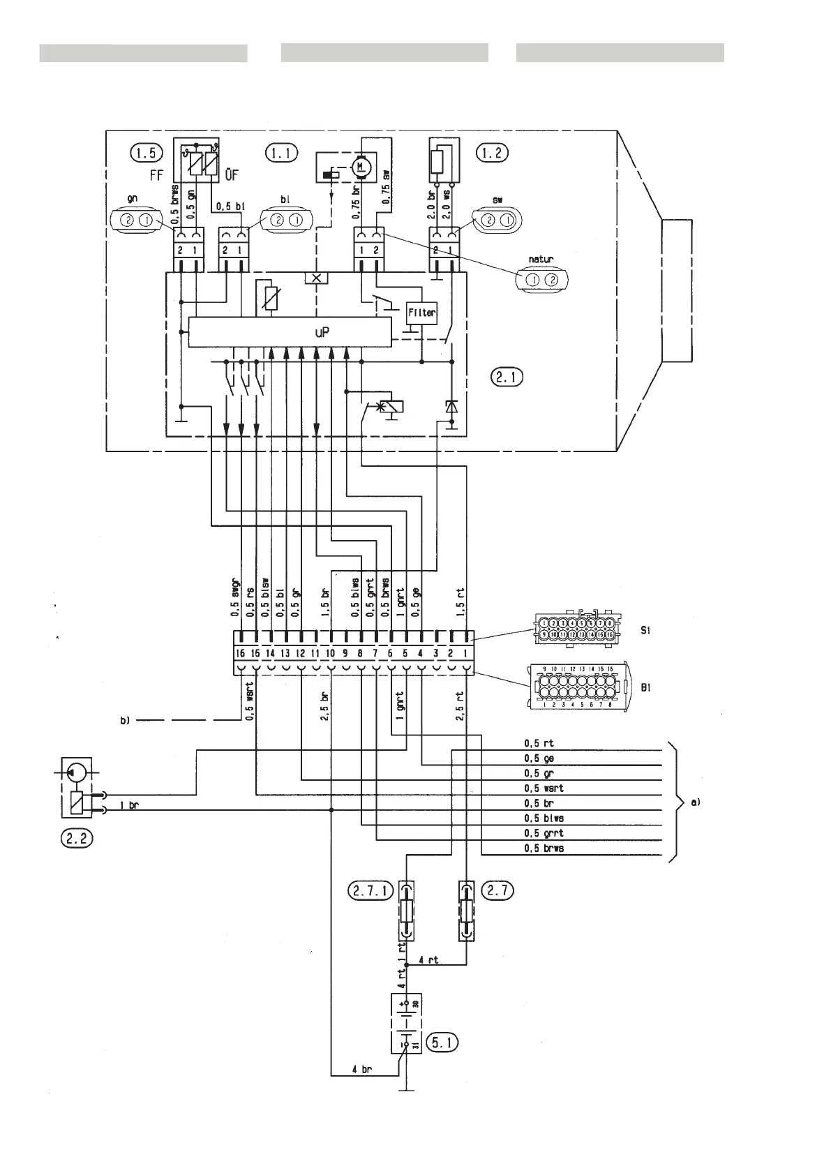
ELECTRICS DIAGRAM AIRTRONIC D2 /
AIRTRONIC D4 OPTION
Parts list
SCHEMA ELETTRICO AIRTRONIC D2 /
AIRTRONIC D4 OPTION
PL
SCHEMAT ELEKTRYCZNY AIRTRONIC D2
/ AIRTRONIC D4 OPCJA
648870 IT-EN-PL (04/05/2015)

Related product manuals