EasyManua.ls Logo

Marantz SR-14 - Page 8

Marantz SR-14
60 pages
Print Icon
To Next Page IconTo Next Page
To Next Page IconTo Next Page
To Previous Page IconTo Previous Page
To Previous Page IconTo Previous Page
Loading...
1 2 3 4 5 6 7 8 9 10 11 12 13 14 15
161718192021222324252627282930
VCCGND
FM IF
REG
AM
OSC
AM
MIX
AM
RF AMP
AGC
AM/FM
BUFF
IF/DET
AM
COMP
BUFF
DECORDER
MUTE
STEREO
SW
PILOT
DET
FF
FF
FF
VCO
V-SM
AM
S-METER
STEREO DRV.
PHASE DET
SD
TUNING DRIVE
FM DET
S-CURVE
FM
S-METER
L
R
L
R
C502
C501
R506
C511
R203
Q202
C201
RA02
CA03
CA05
CA04
LA02
CA01
L201
C208
C203
C202
DA06
DA05
LA01
DA01
C223
L504
L501
L503
C226
C233
D201
F202
J102
R205
CA02
R307
L301
R220
C220
R315
Q203
R313
R512
C504
C206
LA06
R213
R309
R310
R513
R209
D202
R207
R214
Q204
C318
C222
C210
C204
R316
D501
R504
C508
R210
R212
011K
X501
R208
RA11
C234
LA05
C309
C310
C216
C218
RA01
F201
L302
C215
C235
C237
R308
J101
CA68
CA69
CA70
CA78
CA73
CA72
CA71
CA51
CA59CA57
RA74
RA62
RA61
QA53
XA51
LA51
CA66
CA79
RA73
RA75
RA51
RA77
CA55
RA53
RA69
RA57
RA55
RA71
CA61
CA60
CA58
RA54
RA70
RA58
RA56
RA72
CA62
R302
R301
RA59
RA60
CA76
CA75
R314
C313
C314
C305
C306
C311
C312
Q501
CA09
RA06
CA11
CA12
LA04
CA08
LA03
DA03
RA08
RA07
QA02
QA03
RA09
DA04
CA13
CA14
QA01
CA06
RA03
S301
Q351
L355
L354
L353
L352
L350
L356
L359
C356
C351
Q352
Q353
D351
C365
JA51
CA77
CA80
QA52
R507
C315
CA07
R515
R509
R202
QA54
CA63
CA54
J104
R217
C219
C207
FA01
CA18
C213
C211
C212
C214
C209
R211
C303
C304
C503
J105
C236
RA78
R216
C367
C368
C372
C371
J106
C205
R206
DA02
R511
R516
R510
R505
C361
C362
C363
C364
CA56
CA64
CA65
CA67
C507
C505R502
C225
Q301
R302
R301
C306 R304
R303C305
C317
C316
C369
C370
RA04
DA02
U107
U104
D502
R221
Q209
QA04
QA05
QA06
QA07
QA08
QA51
R204
L502
RA10
D503
D503
CA53
RA99
A101
C217
C227
C301
C302
J103
R101
R201
R201
R215
R303
R304
U180
R508
C510
R355
C357
X351
R352
C358
C353
C354
C352
L351
Q201
C366
R354
R353
R356
Q201
R357
47p
CH
47p CH
1k
0.01
2.2k
2SC1809S
P
0.01
100k
15P CH
47P CH
390P/100V
MW-OSC
20P
0.047
0.047
0.01
*
*
MW-ANT
VCD
47UH
47UH
47UH
0.01
*
YL01010140
330
0.047
220
100
2200P
FMCF
2.7k
DTA114ES
/ETC
220 1/4W
270
1W
0.01
450kHZ
47
47k
47k
10k
4.7k
9.1V
180
1/4W
47k
DTC144ES
100p
1000p
0.01
0.047
2.7k
5.1V
3.3k
10k
260J123010
7.2MHz
2.7k
10k
39MH
0.015
50V
0.015
50V
0.01
10k
0.047
0.01
0.01
220
1/50V
22/16V
47/16V
100/16V
1000P
1000P
1000P
1000P
330P330P
1K
2.2k
2.7k
DTC144ES
3.6MHz
450kHZ
0.01
0.01
180k
100k
47k
10k
1000P
47k
6.8k
27k
47k
6.8k
680P
330P
330P
47k
6.8k
27k
47k
6.8k
680P
4.7k
4.7k
4.7k
4.7k
1/50V
1/50V
220 1/4W
47/16V
47/16V
4.7/50V
4.7/50V
4.7/50V
4.7/50V
LC72130
15P CH
100k
68
CH
150P
CH
LW-OSC
20P
LW-ANT
VCD
150k
10k
2SC536
SP/ETC
2SD2144
S/U/V
2.2k
1SS135
0.01
0.01
2SC536
SP/ETC
0.01
10k
LC72720
15p
0.01
DTC114ES
/ETC
DTA114ES
/ETC
5.1V
47/16V
10/50V
10/50V
NJM7808F
+8V
68k
0.01
0.01
10k
22k
390
2SC536
SP/ETC
0.47/50V
10/50V
YL01010140
180
1/4W
10/50V
100/10V
SFZ450JL3
4.7/50V
0.47/50V
2.2/50V
1/50V
47/16V
1
0
/5
0
V
F,U:10k
K,N,S:22k
10/50V
10/50V
100/10V
0.01
10k
27k
100p
100p
100p
100p
YL01010140
3.3/50V
6.8k
*
8.2k
*
10/50V
100/16V
4.7/50V
100/16V
FMCF
4.7k
4.7k
1k
0.01
0.01
100p
100p
100p
100p
22000PF
10/50V
0.22
47P (CH)
0.01
2.2/50V2.2k
0.01
NJM4558DD
*
*
**
**
100p
0.01
DUMMY
DUMMY
150k
1SS135
F, K , S , U
* N ONLY
10k
N,S ONLY
2SC536
SP/ETC
N,S ONLY
DTA114ES
N ONLY
DTA114ES
N ONLY
DTC114ES
/ETC
N ONLY
DTC144ES
F ONLY
DTA144ES
F ONLY
MC13022
470
47UH
10k
F,N ONLY
F ONLY
N ONLY
10/50V
47k
F:AV00901010
OTHER:AV00903010
F ONLY
10k
1/2W
U ONLY
47
K,N,S ONLY
F,U ONLY
F:4.7k
K,N,S:10k
F:4.7k
K,N,S:10k
N,S ONLY
47k
U,K ONLY
100p
15p
4.322MHz
100k
10/50V
330p
560p
10/50V
LA1837
1/50V
10k
470k
470 1W
LA1837
10k
+15VA
+15VA
+15VA
+15VA
+15VA
-15VA
+15VA
-15VA
+15VA+15VA
-15VA
+15VA
C373
0.01
C374
0.1
TU-CE
TU-CLK
TU-CLK
TU-CE
TU-DO
TU-DI
TU-DO
RDS-DI
TU-DO
TU-CLK
RDS-DI
TU-CE
TU-DI
FM75
GND
AM
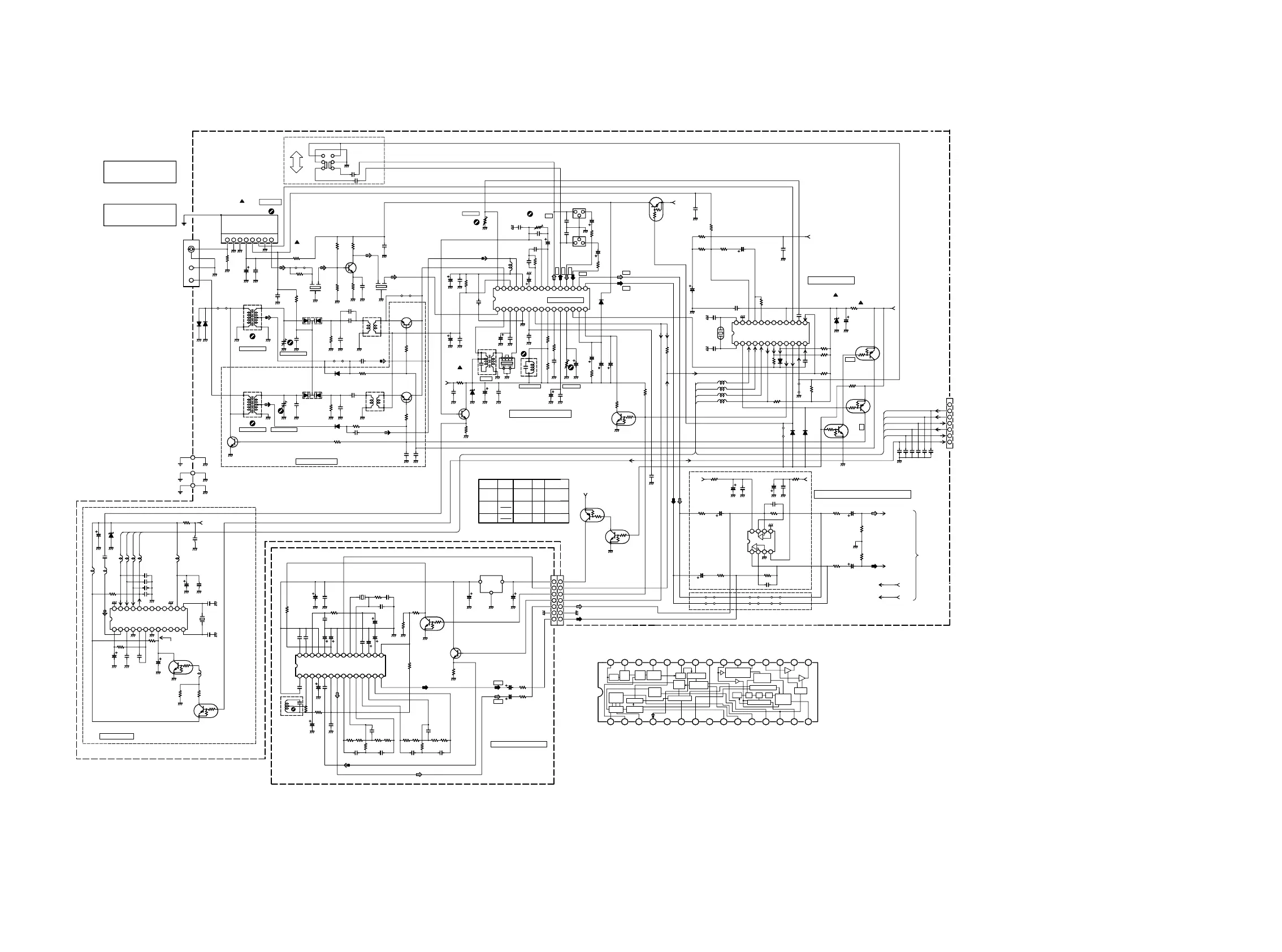
FM FRONT-END
ANT
VT
123456789101112
131415161718192021222324
123456789101112131415
161718192021222324252627282930
12345678
ANT
TERMINAL
23
7
14
568
MONO/ST
AM STOP
SEP
FM MUTE
-
-
+
+
(0.0)
[0]
0
5.8
(0)
[0]
0
MONO DIST
AM IF
ST DIST
P104 - 1/2
FM/AM IF MPX
PLL-BLOCK
FM AM IF/MPX
3.9V
3.1V
12.0V
(0V)
(0V)
(0V)
(3.9)
15.0
(1.3)
[1.3]
(15.0)
[15.0]
14.9
[14.9]
14.9
(14.9)
C227 R215
C301/302
68k
2200P
C217
P104 1/2
Tuner P.C.Board
50
µ
S
9kHz
75
µ
S
10kHz
DE-EMPHASIS
K ONLY
/SCAN STEP SW.
27k0.027U
0.015U
0.047U
0.033U
K,N,S
TU-SD
1.7
123456789
L OUT
R OUT
AM STEREO BLOCK
STEREO:0V
MONO:5V
GND
GND
VCC
OSC-O
GND
IF OUT
K,N,S:FF11070620
F201
U,F :FF11070610
LCH
RCH
MONO/ST
LCH
RCH
IF-IN
PRE AMP K,N,S,F ONLY
(0V)
0V
(0V)
0V
[4.3]
[3.6]
0
(0)
0
0
(3.6V)
[0V]
0
(4.3V)
131415161718
19
20212223
24
1234567891011
12
RDS BLOCK
+15V
OSC-KIL
LW
MW
LW TRACKING LW TRACKING
(RDS)
P154
ST-IND
[0]
0
(15.0)
0
(0)
[15.0]
[0V]
1
2
3
4
5
6
7
[0.7]
MW TRACKING
MW TRACKING
170kHz 260kHz
F
U
0.027U 27k 0.033U
TU-CLK
TU-CE
TO JY70 (PY64)
M06-CONNECT
(RTU)
(M03)
(M03)
N.C
3.6
9.2
3.6
3.6
5.0
5.2
9.0
9.1
0.1
0.3
0
3.9
8.0
8.0
4.3
4.3
4.3
4.3
3.3
3.3
2.9
2.1
0
0
5.1
5.0
3.6
3.6
2.1
7.2
2.9
2.9
1.3
0.9
0.2
1.8
1.2
1.2
1.2
1.2
1.2
1.2
1.8
0.1
2.9
2.9
2.9
2.9
6.4
5.2
0
0.4
3.6
8.0
2.9
8.0
7.3
(RAS)
F ONLY
N, S ONLY
TU-DO
TU-DI
DO
CLK
DI
CE
FM
STRQ
MUTE
VDD
VSS
10kHZ
ST-IND
RDS-DI
LW
M/S
(AM SEP.ADJ)
28 27 26 25 24 23 22 21 20 19 18 17 16 15
1413121110
AM(LW)BLOCK
LCH
RCH
LCH
RCH
LCH
RCH
STRQ/MUTE
VREF
VDDA
VSSA
MPXIN
CIN
T1
T2
T3
T4
T5
XOUT XIN
VSSD
T6
T7
SYNC
DO
CL
DI
CE
SYR
FL-OUT
1400/1404kHz
600/603kHz
N ONLY
F,K,N,S ONLY
U ONLY
1
2
3
4
5
6
1
2
3
4
5
6
77
FM 108MHz
AM
87.5MHz
FM
AM 531kHz 1602kHZ
TUNING VOLTAGE (F)
76.0MHz
1.7
90MHz
4.0V
1.1V 6.9V
2.1V 7.2V
1.1V 7.6V
520/531kHz 1710/1602kHZ
TUNING VOLTAGE (OTHER)
TUNER-L
TUNER-R
P104
- 2/2
TO ELE.VOL./TONE BLOCK
TUNED ON :L
TUNED OFF:H
FM:L
AM:H
SD
VCC
GND
RDSDI
VDDD
( ) : AM/MW
[ ] : LW
9 10

Related product manuals