EasyManua.ls Logo

Marantz SR7002 - Connecting Other Equipment

Marantz SR7002
84 pages
Print Icon
To Next Page IconTo Next Page
To Next Page IconTo Next Page
To Previous Page IconTo Previous Page
To Previous Page IconTo Previous Page
Loading...
ESPAÑOL
38
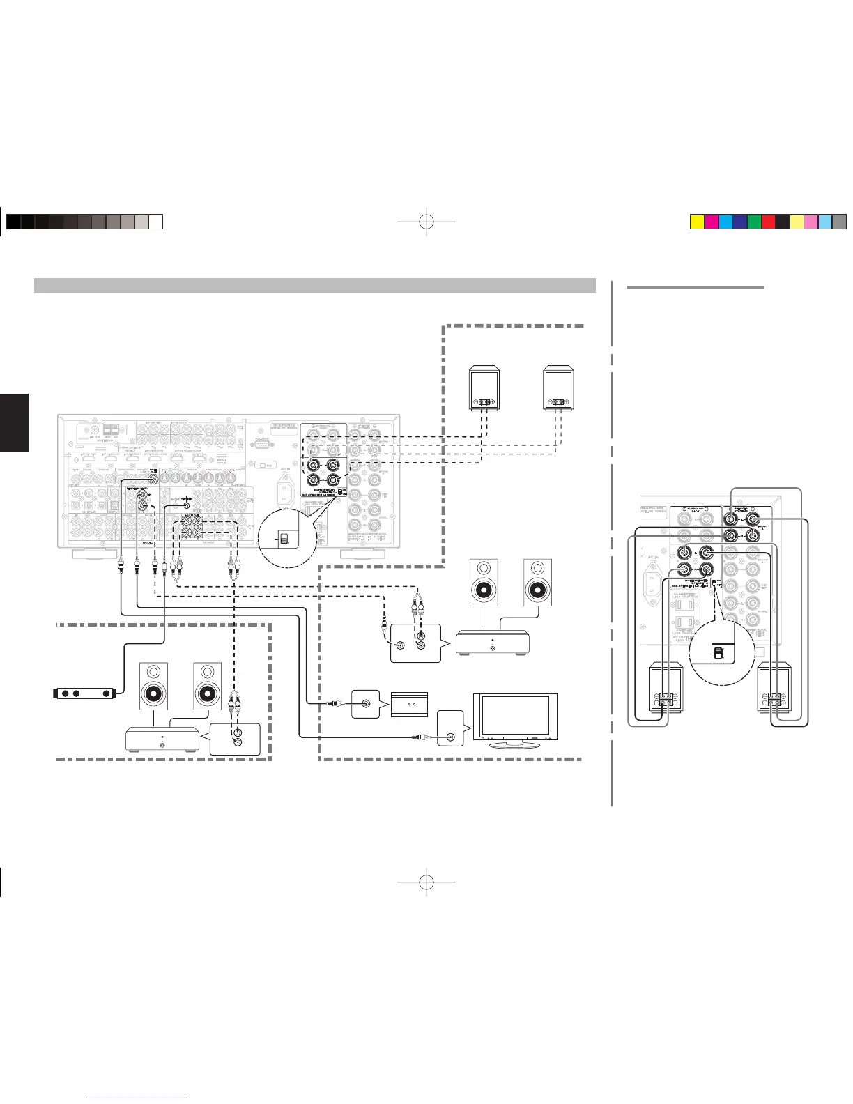
CONEXIONES PARA MULTI-SALA
CONEXIÓN PARA USO DEL ALTAVOZ C
Conexión con biamplifi cador (Bi-amp)
Una conexión con biamplificador es posible con
altavoces que tengan dos series de entradas (para
agudos y bajos).
Esto permite cablear las unidades de agudos y de
graves con amplifi cadores de canal separados, y
generar una mejor calidad de sonido. Conecte los
altavoces tal y como se muestra en la fi gura. Ajuste
el conmutador SPEAKER C del panel trasero en
ON.
Notas:
Si se conecta incorrectamente, se activará un circuito
protector en la unidad y pondrá el receptor en
reposo. (El indicador STANDBY parpadeará). En
tal caso, vuelva a comprobar las conexiones entre los
altavoces y la unidad.
Apague la alimentación de la unidad antes de cambiar
el ajuste del interruptor selector de SPEAKER C.
ONON
OFFOFF
EAKERMULTI SPEAKER
KER C/SPEAKER C
OHMSSUB SPEAKER : 6-8 OHMS
ALTAVOZ
DERECHO
ALTAVOZ
IZQUIERDO
Nota:
Cuando no se usan los altavoces traseros envolventes,
se pueden utilizar los terminales de los mismos
como terminales de altavoz multisala, MULTI SPK.,
o como terminal del altavoz C, SPEAKER C.
Nota:
El SR7002 no utiliza MULTISALA B.
L R LR
L
R
FRONTRC IN
R L
R L
L
R
FRONT
RC OUT
IN
VIDEO
ONON
OFFOFF
AKERMULTI SPEAKER
KER C/SPEAKER C
OHMSSUB SPEAKER : 6-8 OHMS
Altavoz
derecho
Altavoz
izquierdo
RECEPTOR IR
ALTAVOZ
DERECHO PARA
MULTI-SALA
ALTAVOZ
IZQUIERDO PARA
MULTI-SALA
AMPLIFICADOR
PRINCIPAL
(Para MULTI-SALA)
MULTI ROOM B
(MULTI-SALA)
(Altavoz multisala)
MONITOR
MULTI ROOM A
(MULTI-SALA)
RECEPTOR IR
SR7002-8002UDFU3ESP.indb38SR7002-8002UDFU3ESP.indb38 07.8.2411:56:49AM07.8.2411:56:49AM

Table of Contents

Other manuals for Marantz SR7002

Related product manuals