EasyManua.ls Logo

Masport SOFIA - Page 29

Masport SOFIA
69 pages
Print Icon
To Next Page IconTo Next Page
To Next Page IconTo Next Page
To Previous Page IconTo Previous Page
To Previous Page IconTo Previous Page
Loading...
Page 29
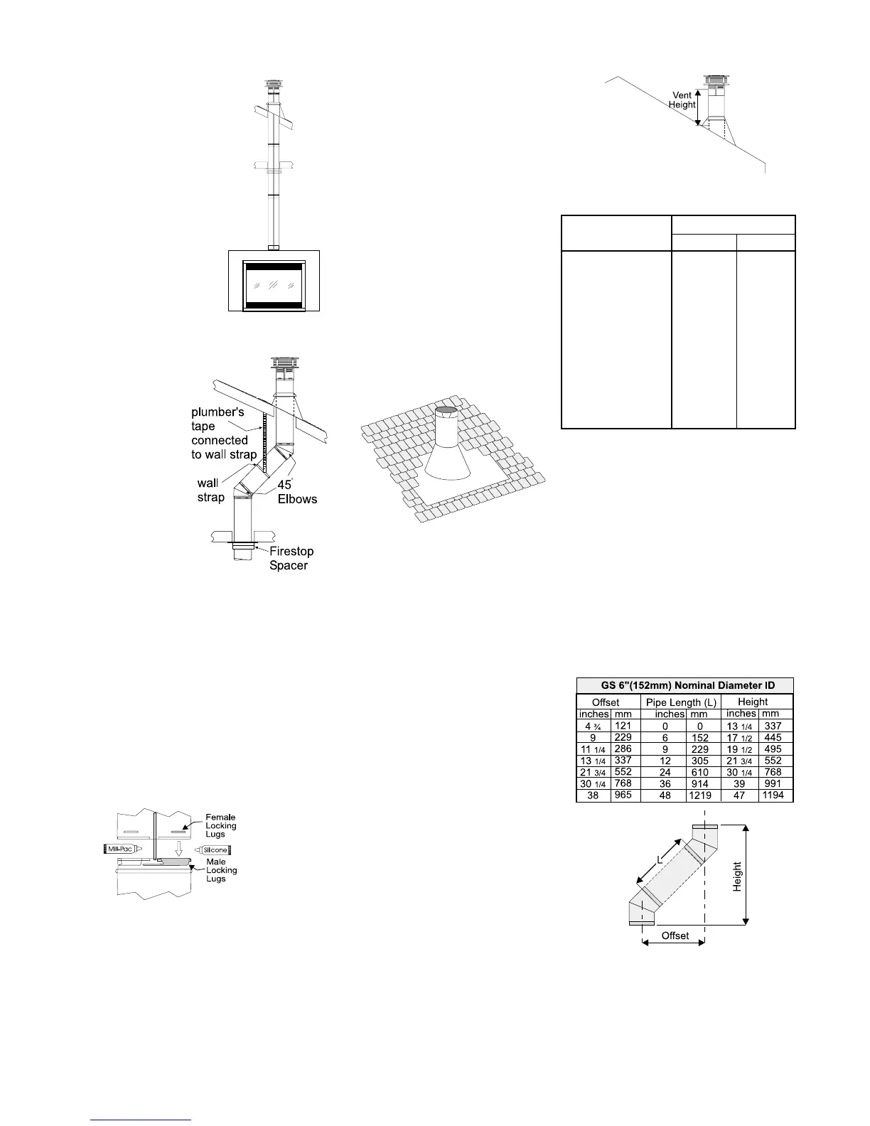
3) A ceiling plate must be installed
in the floor or ceiling of every
level.
4) Assemble the desired lengths of
pipe and elbows. Ensure that all
pipes and elbow connections
are fully sealed.
5) Cut a hole in the roof centred on
the small drilled hole placed in
the roof in Step 2. The hole
should be of sufficient size to
meet the minimum requirements
for clearance to combustibles of
40mm. Slip the flashing under
the shingles (shingles should
overlap half the flashing) as per
Diagram 4.
6) Continue to assemble pipe
lengths.
Note: If an offset is necessary in the
attic to avoid obstructions, it is
important to support the flue
pipe every 900mm, to avoid
excessive stress on the elbows,
and possible separation. Wall
straps are available for this
purpose (Diagram 2).
Galvanized pipe is desirable
above the roofline due to its
higher corrosion resistance.
Continue to add pipe sections
through the flashing until the
height of the flue cap meets the
minimum height requirements
specified in Diagram 5 or local
codes. Note that for steep roof
pitches, the vertical height must
be increased. A poor draft, or
down drafting can result from high
wind conditions near big trees or
adjoining roof lines, in these
cases, increasing the flue height
may solve the problem.
7) Ensure flue is vertical and
secure the base of the flashing
to the roof with roofing rails,
slide storm collar over the pipe
section and seal with a mastic.
8) Install the vertical termination
cap by twist-locking it.
Note: Any closets or storage spaces,
which the flue passes through must
be enclosed.
Offset Chart
Diagram 5
1) Maintain the 40mm
clearances (air
spaces) to
combustibles when
passing through
ceilings, walls, roofs,
enclosures, attic
rafter, or other
nearby combustible
surfaces. Do not
pack air spaces
with insulation.
2) Set the gas
appliance in its
desired location.
Drop a plumb bob down from the
ceiling to
the position
of the
appliance
flue exit,
and mark
the location
where the
flue will
penetrate
the ceiling.
Drill a small
hole at this
point. Next,
drop a
plumb bob
from the roof to the hole
previously drilled in the ceiling,
and mark the spot where the flue
will penetrate the roof. Determine
if ceiling joists, roof rafters or
other framing will obstruct the
flueing system. You may wish to
relocate the appliance or to
offset, as shown in Diagram 2 to
avoid cutting load bearing
members.
Roof Pitch Minimum Flue Height
Feet Metres
flat to 7/12 2 0.61
over 7/12 to 8/12 2 0.61
over 8/12 to 9/12 2 0.61
over 9/12 to 10/12 2.5 0.76
over 10/12 to 11/12 3.25 0.99
over 11/12 to 12/12 4 1.22
over 12/12 to 14/12 5 1.52
over 14/12 to 16/12 6 1.83
over 16/12 to 18/12 7 2.13
over 18/12 to 20/12 7.5 2.29
over 20/12 to 21/12 8 2.44
Diagram 4: The upper half of the
flashing is installed under the roofing
material and not nailed down until the
chimney is installed. This allows for
small adjustments.
VERTICAL TERMINATIONS
Diagram 1
Note: Apply sealant "Mill-Pac" to in-
ner pipe and high temperature
silicone sealant to outer pipe on
every joint.
Diagram 2

Other manuals for Masport SOFIA

Related product manuals