EasyManua.ls Logo

Masport SOFIA - General Information; Installation Instructions; Listings and Code Approvals; Parts

Masport SOFIA
69 pages
Print Icon
To Next Page IconTo Next Page
To Next Page IconTo Next Page
To Previous Page IconTo Previous Page
To Previous Page IconTo Previous Page
Loading...
Page 45
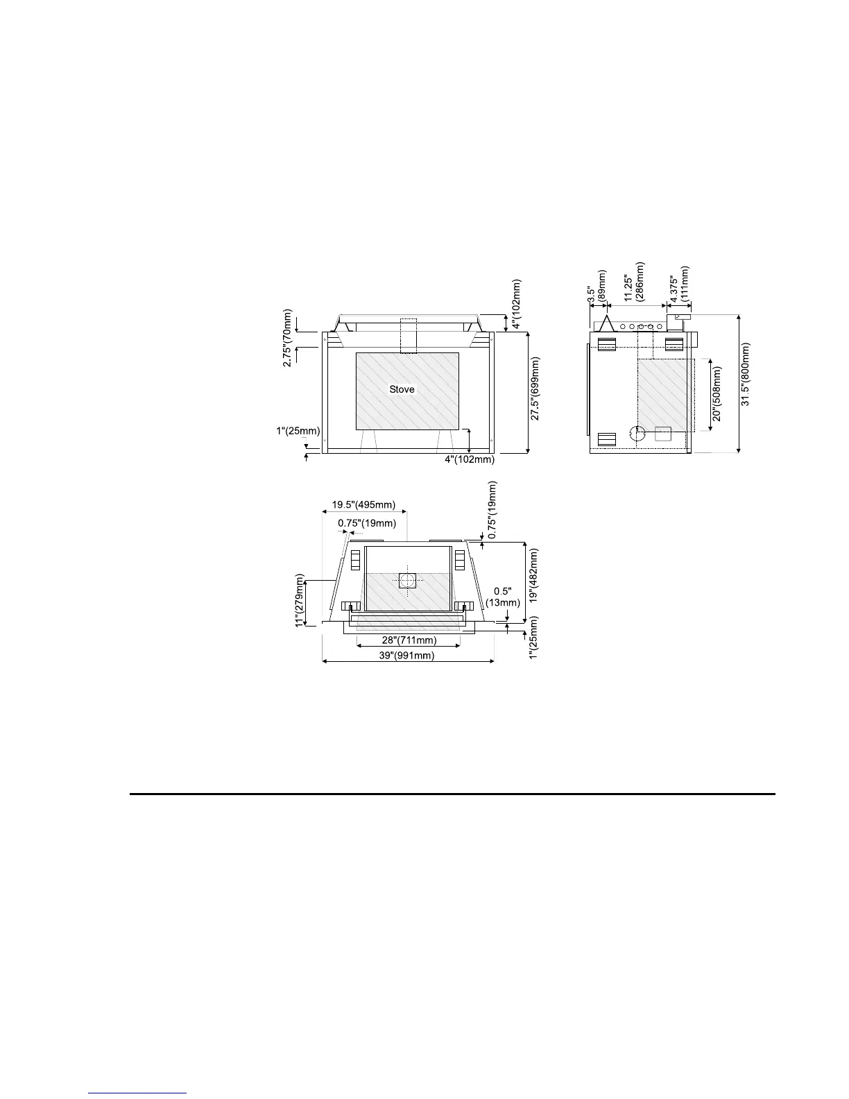
Specifications
INSTALLATION INSTRUCTIONS
LISTINGS AND CODE APPROVALS
This gas component has been tested in accordance with National Safety Standards, and has been certified by
Warnock Hersey for installation and operation in the United States and Canada as described in these
Installation and Operating Instructions. This gas component has also been tested in accordance with AG103
and certified in Australia by the Australian Gas Association for installation in Australia, and New Zealand.
Install according to AG 103 and as described in these installation and operating instructions.
PARTS
Included with Kit:
1 (410-905) Main Body Assembly
Sold Separately: (Rq)=Required (Op)=Optional
(Rq) 1 (410-906) Zero Clearance Faceplate
44" W x 32"H (1117mm W x 813mm H) includes
4"(102mm) Hearth Trim and faceplate trim
(Op) 1 (410-920) Ash Lip
GENERAL INFORMATION
This kit consists of factory built parts that require
minimal assembly to form the Zero Clearance enclo-
sure for the U31/I31 Gas Insert. The enclosure can
then be fixed into a framed combustible construction,
and a standard
"B-vent" (Australia/New Zealand: an approved twin
skin flue) installed on the assembly for the required
venting (flueing). The insert can be installed later.
The faceplate will normally overlap on top of the
finished wall.Using Kit# 410-905 you can convert the
U31/I31 Gas Insert models into highly efficient heat
producing Zero Clearance Fireplaces.
Check with your local
building code agency
before you begin
your installation to
ensure compliance
with local codes,
including the need
for "permits" and
follow-up inspections.
If any problems are
encountered
regarding code
approvals, or if you
wish clarification on
any of the
instructions
contained here,
contact your local
dealer.

Other manuals for Masport SOFIA

Related product manuals