EasyManua.ls Logo

Masport SOFIA - Ashlip Installation; Framing

Masport SOFIA
69 pages
Print Icon
To Next Page IconTo Next Page
To Next Page IconTo Next Page
To Previous Page IconTo Previous Page
To Previous Page IconTo Previous Page
Loading...
Page 48
INSTALLATION INSTRUCTIONS
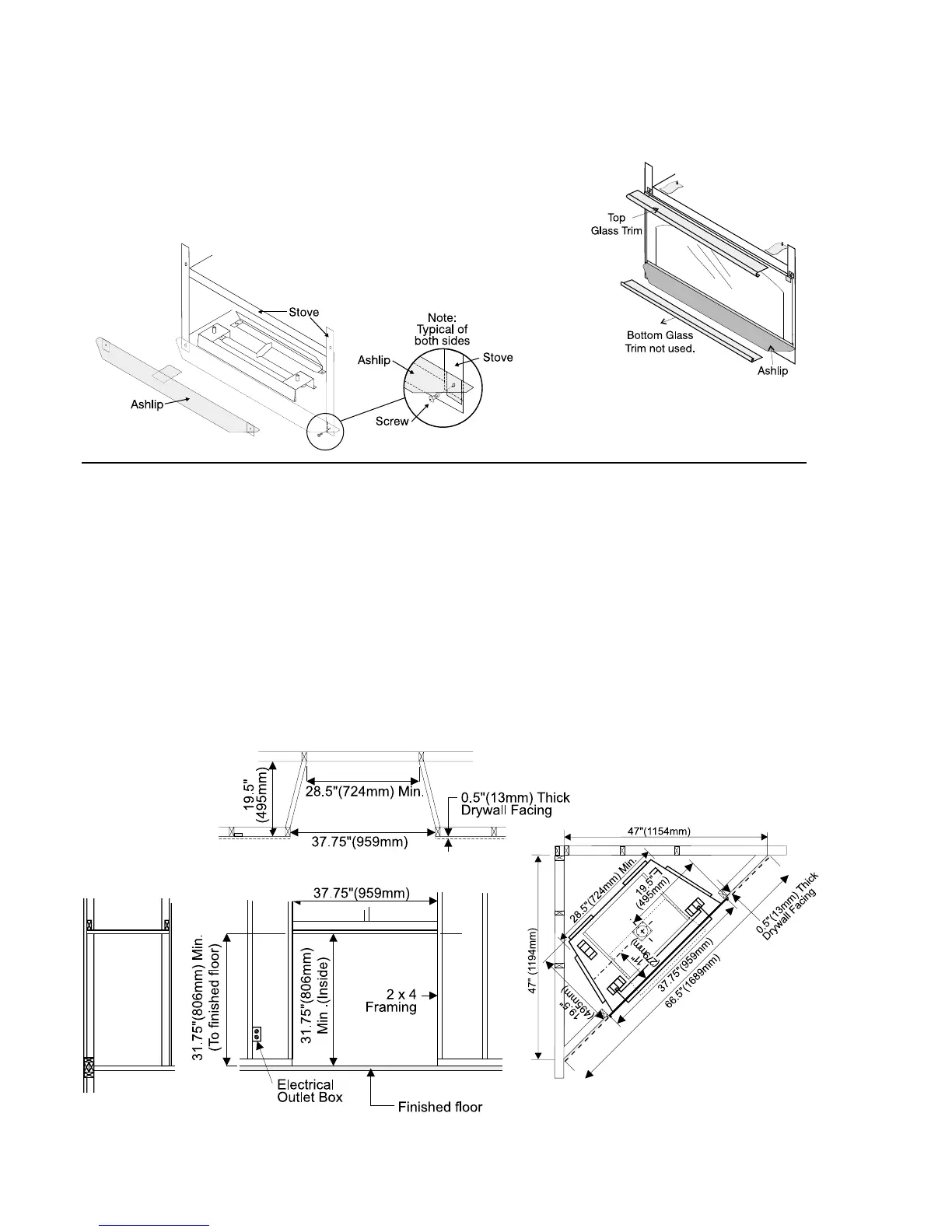
FRAMING
1) The trim kit allows for 1/2" (13 mm) of finish facing material. The kit may be installed directly on and/or
against standard combustible building materials.
2) Frame in the enclosure for the Kit with framing material. The framed opening for the assembled kit is 31.75"
(806mm) high x 37.75" (959mm) wide x 19.5" (495mm) (20" (508mm) including drywall) deep. See dia-
gram below.
3) For exterior walls, vapour barrier and insulate the enclosure to the same degree as the rest of the house, or
according to local installation codes.
4) The appliance must be enclosed with non-combustible material above the standoffs on the cabinet
but the clearances stated on the "B-vent" chimney must be maintained.
ASHLIP INSTALLATION
1) Line up the two holes in the ashlip with the bottom 2 holes in the front
of the stove.
2) Screw into position with the two screws provided with the ashlip.
NOTE: The bottom gold trim does not go onto the
unit when the ashlip is installed.

Other manuals for Masport SOFIA

Related product manuals