EasyManua.ls Logo

Masport SOFIA - Clearances to Combustibles

Masport SOFIA
69 pages
Print Icon
To Next Page IconTo Next Page
To Next Page IconTo Next Page
To Previous Page IconTo Previous Page
To Previous Page IconTo Previous Page
Loading...
Page 46
INSTALLATION INSTRUCTIONS
Top View
K
45
A
D
KK
Max.
Side View
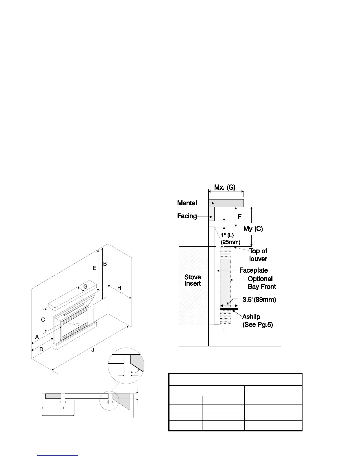
CLEARANCES TO COMBUSTIBLES
The clearances for the Zero Clearance Kit are 0" to combustibles (back, side and floor) but when planning your
installation review the clearances required for the Insert (see below) after it is installed in the Zero Clearance
Kit. The Zero Clearance Kit must be installed on a flat, solid, continuous surface (e.g. wood, metal, concrete).
This may be the floor, or raised up on a platform to enhance its visual impact.
NOTE: The specified '0' inch floor clearance means that the top surface of the flooring material, i.e. carpeting, tile, etc., must not extend
above the bottom edge of the 4" Hearth Trim.
Clearances to Combustibles for Insert
*Combustible Mantel Clearances
Depth (Mx) Clearance (My)
(inches) (mm) (inches) (mm)
0" to 3.5" 0mm to 89mm 20" 508mm
to 5.5" to 140mm 21" 533mm
to 11.5" to 292mm 22" 559mm
From Unit
Sides A 10" / 250 mm
Drop Ceiling B 47.5" / 1207 mm
Mantel* C(My)22" / 555 mm
From Surround
Sides D 2" / 50 mm
Drop Ceiling E 37.75" / 945 mm
Mantel Depth* G(Mx)11.5" / 290 mm
Max. Alcove Depth H 36" / 882mm
Min. Alcove Width J 48" / 1200 mm
Facing (Mantel Leg)
Side** K 1" / 25 mm
Top L 1" / 25 mm
* Mantel clearances vary with the width of the
mantel see the chart "Combustible Mantel Clear-
ances" on this page.
Note: A non-combustible mantel may be installed at a lower
height if the framing is made of metal studs covered with a
non-combustible board.
**Max. width of 1"(25mm) at 1"(25mm) from
surround, calculate depth at 45
o
as shown in the
diagram.

Other manuals for Masport SOFIA

Related product manuals