EasyManua.ls Logo

Masport SOFIA - Ashlip

Masport SOFIA
69 pages
Print Icon
To Next Page IconTo Next Page
To Next Page IconTo Next Page
To Previous Page IconTo Previous Page
To Previous Page IconTo Previous Page
Loading...
Page 47
Figure 3
Figure 1
Figure 2
INSTALLATION INSTRUCTIONS
A
D
E
C
F
B
LOCATING YOUR U31/I31 FIREPLACE
Due to high temperatures the Insert should be located out of traffic
and away from furniture and draperies. Provide a minimum of 48"
(1220mm) front clearance to the unit.
This appliance is Listed for bedroom installations when used with a
Listed Millivolt Thermostat. Some areas may have further require-
ments, check local codes before installation.
This unit is not approved for installation into a mobile home.
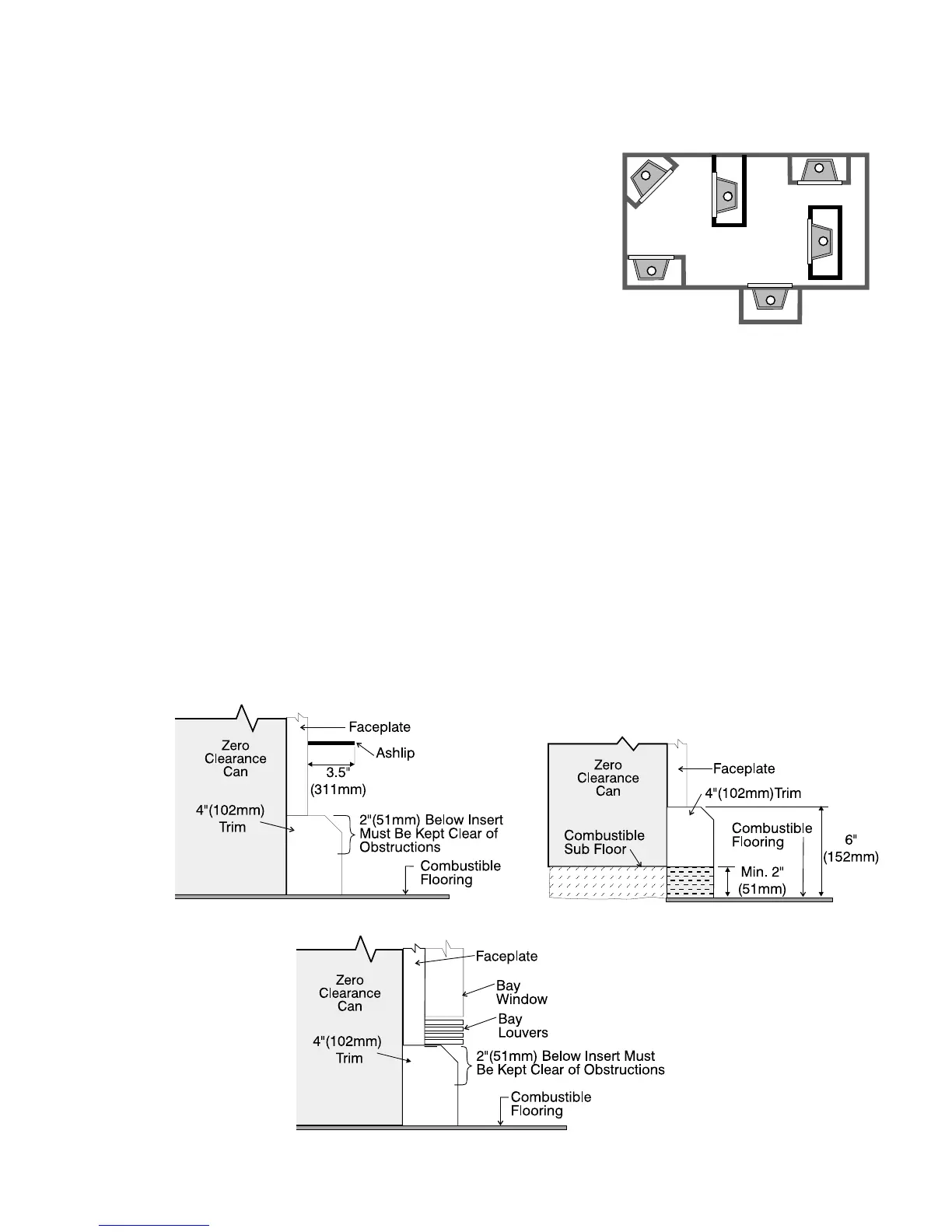
ASH LIP FOR FLUSH INSTALLATION
a) An ashlip is mandatory on a U31/I31 flush (flat window) Insert when installed less than 6" (152mm),
(including the 4"(102mm) hearth trim) to a combustible floor (see Figure 1). For detailed installation see
Faceplate and Trim Installation.
Note: If the ashlip is required with the flush front installed, the bottom gold trim will NOT fit and cannot be
installed.
b) No ashlip is required when U31/I31 insert is raised by 2"(51mm). See figure 2.
c) No ashlip is required on a U31/I31 insert with a bay window and/or bay louvres. See figure 3.
a) Cross Corner d) Island
b) Room Divider e) Flush with
Wall
c) Flat on wall f) Flat on Wall
Corner

Other manuals for Masport SOFIA

Related product manuals