EasyManua.ls Logo

Maxum 4100 SCB - Battery Cable Routing (Positive & Ground)

Default Icon
56 pages
Print Icon
To Next Page IconTo Next Page
To Next Page IconTo Next Page
To Previous Page IconTo Previous Page
To Previous Page IconTo Previous Page
Loading...
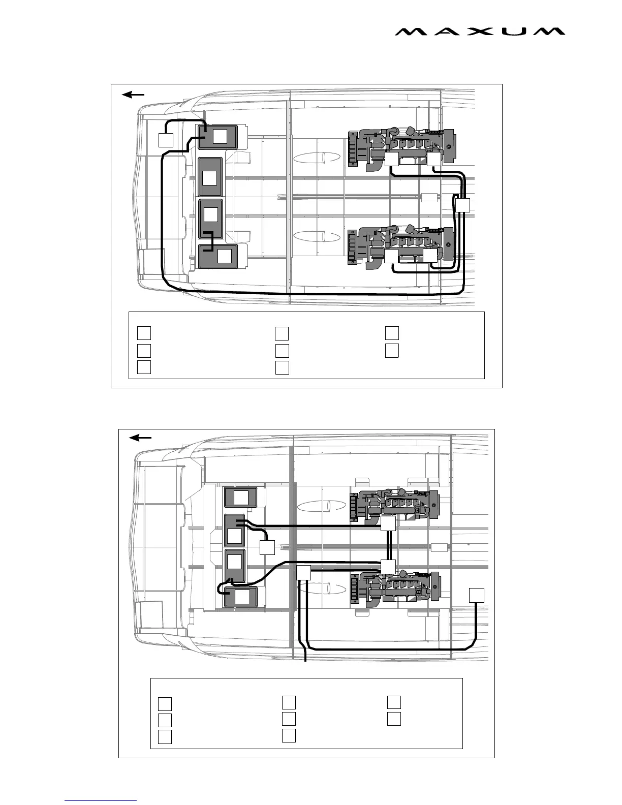
30 Chapter 3: Electrical Routings
4100 SCB Owners Manual Supplement
Positive Battery Cable Routing
Negative Battery Cable Routing (Ground)
5
8
6
7
ISOLATOR
ENGINE ALTERNATOR
ENGINE
8
INVERTER
(OPTION)
5
1
2
3
4
67
6
7
1
INVERTER
(OPTION)
BATTERY
PORT ENGINE/GENERATOR
HOUSE BATTERY
STARBOARD ENGINE
2
3
4
BATTERY BREAKER
(OPTION)
BATTERY
BATTERY
AFT
KEY
7
6
8
GROUND BUSS
ENGINE
AC/DC PANEL
TO COMMAND BRIDGE
5
GENERATOR
(OPTION)
INVERTER BATTERY
PORT ENGINE/GENERATOR
HOUSE BATTERY
STARBOARD ENGINE
1
2
3
4
(OPTION)
(OPTION)
BATTERY
BATTERY
4
3
2
1
6
7
7
8
5
AFT
KEY

Table of Contents

Related product manuals