EasyManua.ls Logo

McQuay FCVS - Page 24

McQuay FCVS
82 pages
Print Icon
To Next Page IconTo Next Page
To Next Page IconTo Next Page
To Previous Page IconTo Previous Page
To Previous Page IconTo Previous Page
Loading...
24 McQuay IM 980-1
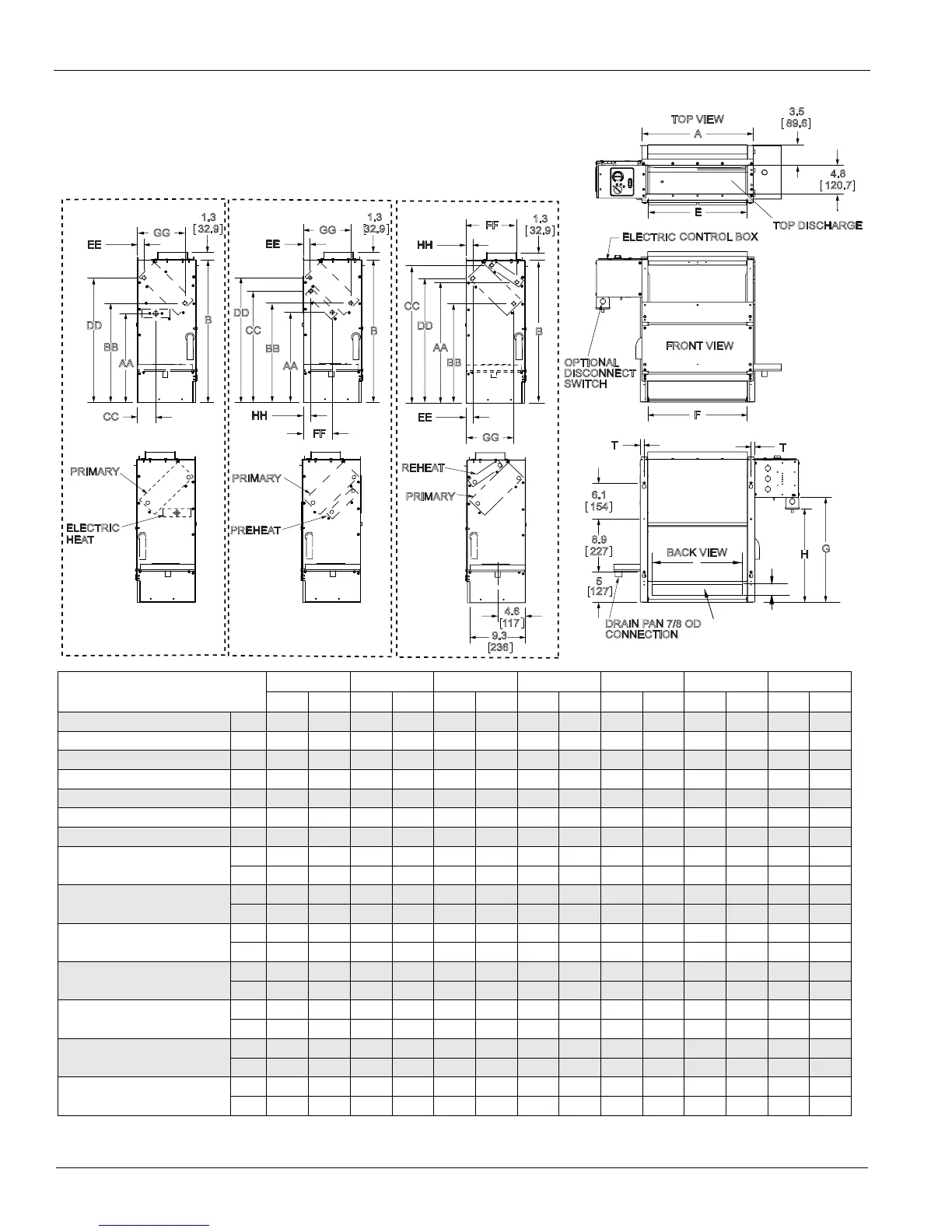
Physical Data
Figure 33: Dimensions: Hideaway, Top-Discharge Fan Coils
Dimension
S02 S03 S04 S06 S08 S10 S12
inch mm inch mm inch mm inch mm inch mm inch mm inch mm
Unit Width A 18.8 475 24.3 617 29.8 757 40.8 1036 46.3 1176 57.3 1455 68.3 1735
Unit Height B 24.0 610 24.0 610 24.0 610 24.0 610 24.0 610 24.0 610 24.0 610
Unit Depth C 9.6 243 9.6 243 9.6 243 9.6 243 9.6 243 9.6 243 9.6 243
Discharge Grille - Width E 16.3 414 21.8 554 27.3 693 38.3 973 43.8 1113 54.8 1392 65.8 1671
Return Air Opening - Width F 16.2 411 21.7 551 27.2 691 38.2 970 43.7 1110 54.7 1389 65.7 1669
Control Box to Floor G 17.6 447 17.6 447 17.6 447 17.6 447 17.6 447 17.6 447 17.6 447
Disconnect Switch to Floor H 15.7 399 15.7 399 15.7 399 15.7 399 15.7 399 15.7 399 15.7 399
Electric Heat Connection
AA 15.1 384 15.1 384 15.1 384 15.1 384 15.1 384 15.1 384 15.1 384
CC 3.0 76 3.0 76 3.0 76 3.0 76 3.0 76 3.0 76 3.0 76
Primary Coil - Water Return
DD 21 533 21 533 21 533 21 533 21 533 21 533 21 533
EE 1.1 28 1.1 28 1.1 28 1.1 28 1.1 28 1.1 28 1.1 28
Primary Coil - Water Supply
BB 16.7 424 16.7 424 16.7 424 16.7 424 16.7 424 16.7 424 16.7 424
GG 7.8 198 7.8 198 7.8 198 7.8 198 7.8 198 7.8 198 7.8 198
Preheat Coil - Water Return
CC 18.7 475 18.7 475 18.7 475 18.7 475 18.7 475 18.7 475 18.7 475
HH 1.2 30 1.2 30 1.2 30 1.2 30 1.2 30 1.2 30 1.2 30
Preheat Coil - Water Supply
AA 15 381 15 381 15 381 15 381 15 381 15 381 15 381
FF 4.7 119 4.7 119 4.7 119 4.7 119 4.7 119 4.7 119 4.7 119
Reheat Coil - Water Return
CC 23.2 589 23.2 589 23.2 589 23.2 589 23.2 589 23.2 589 23.2 589
HH 4.2 107 4.2 107 4.2 107 4.2 107 4.2 107 4.2 107 4.2 107
Reheat Coil - Water Supply
AA 20.3 516 20.3 516 20.3 516 20.3 516 20.3 516 20.3 516 20.3 516
FF 8.3 211 8.3 211 8.3 211 8.3 211 8.3 211 8.3 211 8.3 211
1.3
32.9
1.3
32.9
ELECTRIC
HEAT
5
127
4.6
117
9.3
236
F
H
G
FRONT VIEW
ELECTRIC
CONTROL BOX
OPTIONAL
DISCONNECT
SWITCH
T
T
8.9
227
6.1
154
BACK VIEW
A
E
3.5
89.6
4.8
120.7
TOP V
IEW
TOP DISCHARGE
PRIMARY
DRAIN PAN 7/8 OD
CONNECTION
REHEAT
BB
DD
EE
GG
AA
CC
HH
FF
B
1.3
32.9
PRIMARY
PREHEAT
FF
HH
AA
BB
CC
DD
EE
GG
B
PRIMARY
BB
DD
EE
GG
B
AA
CC
ELECTRIC HEAT OPTION
PREHEAT OPTION REHEAT OPTION
J
FRESH AIR DAMPER
OPENING
2.4
[
61
]

Table of Contents

Related product manuals