EasyManua.ls Logo

McQuay RAH 047C - Page 73

McQuay RAH 047C
122 pages
Print Icon
To Next Page IconTo Next Page
To Next Page IconTo Next Page
To Previous Page IconTo Previous Page
To Previous Page IconTo Previous Page
Loading...
McQuay IM 987 73
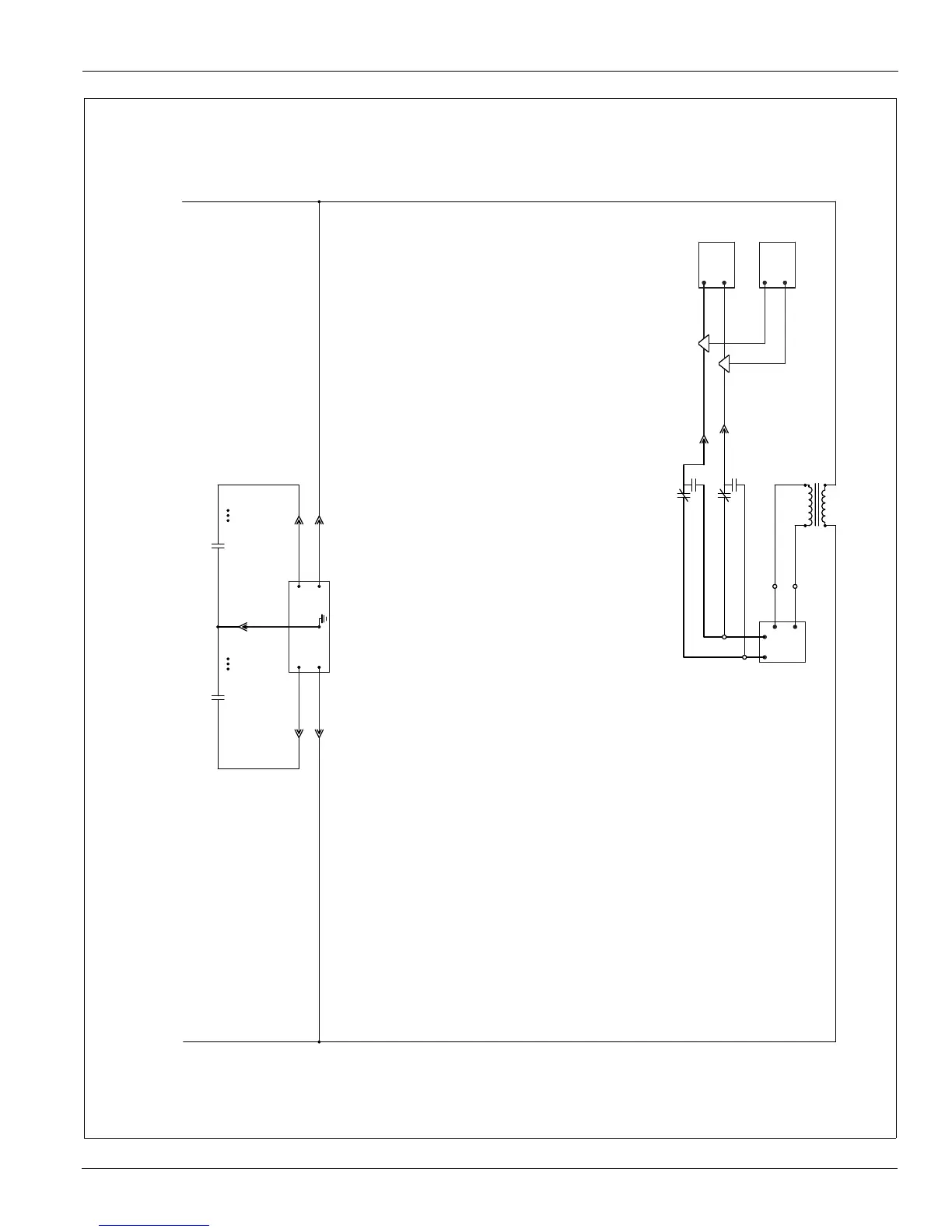
Wiring Diagrams
Figure 81: Control Actuator Outputs (CV, Stream, or Hot Water, Plus Economizer), Continued
H365-1
H366-3
H969
H968
H964
H965
H343-5H343-6
H344-7
H343-9
H344-8
338
339
340
341
342
343
344
345
346
347
348
349
350
351
352
353
354
355
356
357
358
359
360
361
362
363
364
365
366
367
368
369
306
306
207 207
243
RECTIFIER
DC
12V
115V
RELIEF
DAMPER
(OPP.DR
SIDE)
RELIEF
DAMPER
(DRIVE
SIDE)
HEAT
(OPEN)
B10
(CLOSE)
B09
24V SRC
jprs
24V SRC
jprs
AC
AC
-+
L1
X1
L2
X2
1
3
BLK
WHT
WHT
BLK
8
9
11
33
36
35
34
5
7
6
5555555
6666666
5
87
9
6
L2
X-COM
L1
3-CCW2-CW
10NO10 9NO9
RECT
T4
PL17
+PP
ACT11
+NB
ACT10
+NB
R26
TB1F
TB1F
TB1F
TB1F
R26
PL18
+PP
PL18
+PP
PL18
+PP
PL18
+P
P
PL18
+PP
VM1
+NB
MCB M CB
368A
367A
363B
362A 362B
339A 339C
(Schematic continues on previous page.)

Table of Contents

Related product manuals