EasyManua.ls Logo

McQuay RDS 802C - Ultraviolet Light Operation

McQuay RDS 802C
122 pages
Print Icon
To Next Page IconTo Next Page
To Next Page IconTo Next Page
To Previous Page IconTo Previous Page
To Previous Page IconTo Previous Page
Loading...
McQuay IM 987 95
Unit Options
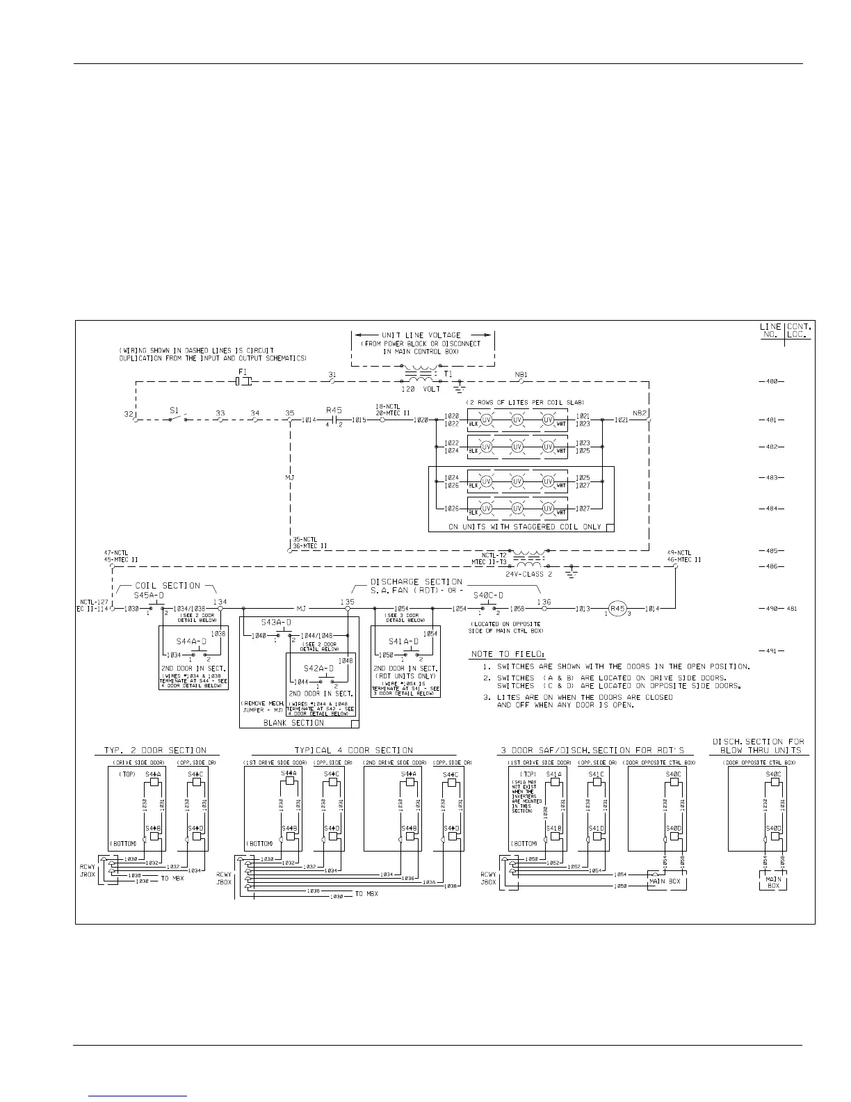
Ultraviolet Light Operation
Refer to the wiring schematic below. 115 V (ac) power for the
UV lights is provided by control circuit transformer T1. The
lights operate whenever the unit is powered, system switch S1
is closed, and all doors with door power disconnect switches
are closed. To turn the lights off, disconnect power to the entire
unit, or open system switch S1.
The normally open disconnect switches are wired in series in a
circuit that supplies 24 V (ac) to the coil of relay R45. When
all doors are closed, relay R45 is energized, and its normally
open contacts (in series with system switch S1) provide 115 V
(ac) to the UV lights.
Figure 110: Typical Ultraviolet Light Wiring Schematic

Table of Contents

Related product manuals