EasyManua.ls Logo

Mec 3084RT - Page 256

Default Icon
344 pages
Print Icon
To Next Page IconTo Next Page
To Next Page IconTo Next Page
To Previous Page IconTo Previous Page
To Previous Page IconTo Previous Page
Loading...
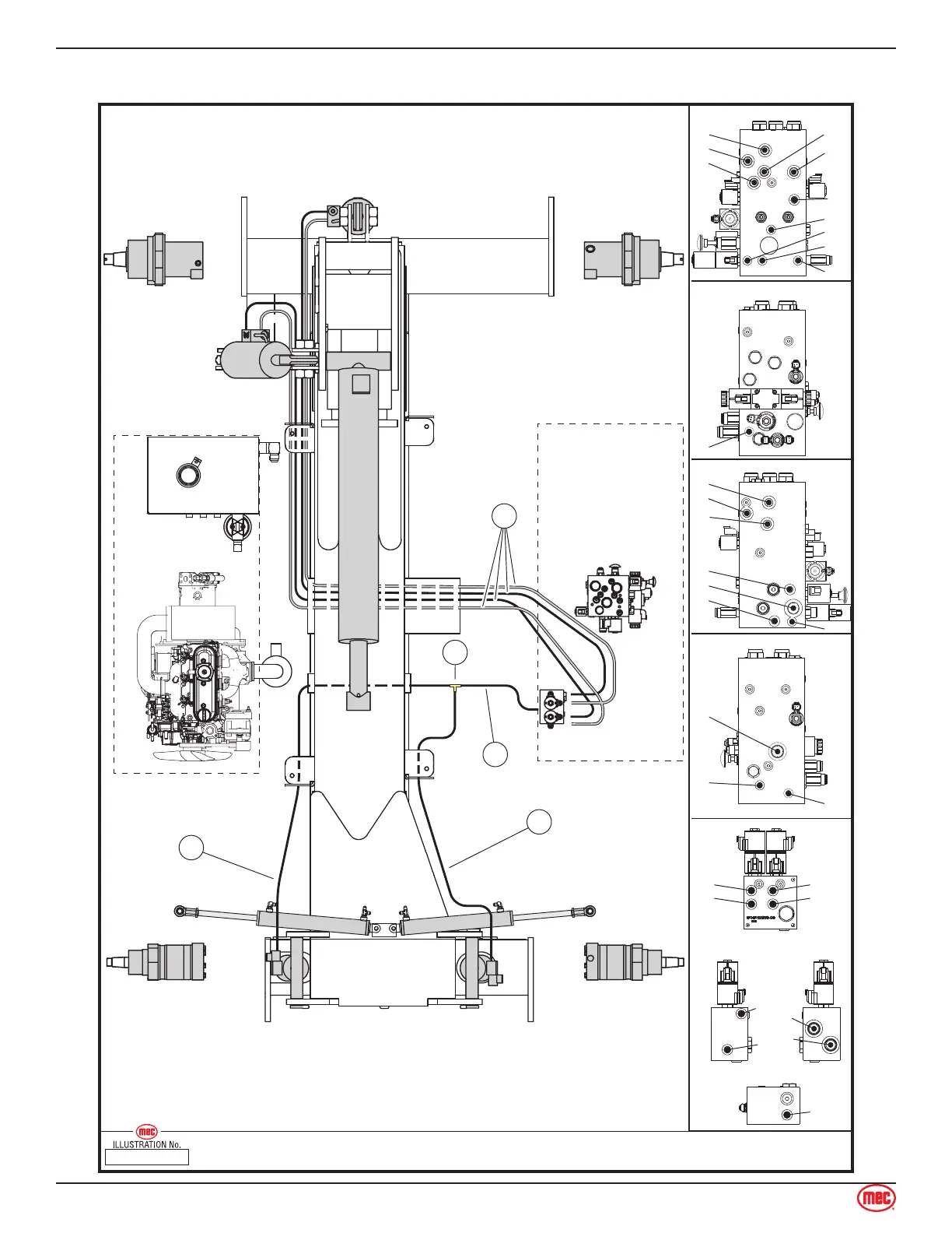
Page 249 Speed Level Series - Service & Parts Manual
January 2019Section 15 - Hydraulics
Hydraulic Hose Routing, RT Models: Platform Level, Axle Float
ART_3201
Hydraulic Hose Routing: Level and Axle FloatSpeed Level™ Sigma Lift
LC1A
LC2A
LC1B
LC2B
LC1A
LC2A
LC1B
LC2B
OA
FRONT
RIGHT
LEFT
BOTTOM
LC1A
LC2A
OA
LC1B
LS
P
T2
T1
LC2B
FRONT
BACK
RIGHT
LEFT
GSTR
ORS
LFT
P
RFB
LRB
RRA
GP
STR
B
STL
ORR
LRA
LFA
RFA
LFB
RRB
T
ORLS
GLS
LS
4
1
3
2
5
RT MODELS

Table of Contents

Related product manuals