EasyManua.ls Logo

Mendota FV42 - Fireplace Dimensions and Clearances

Mendota FV42
96 pages
Print Icon
To Next Page IconTo Next Page
To Next Page IconTo Next Page
To Previous Page IconTo Previous Page
To Previous Page IconTo Previous Page
Loading...
85-03-01109 FV42 Page 18
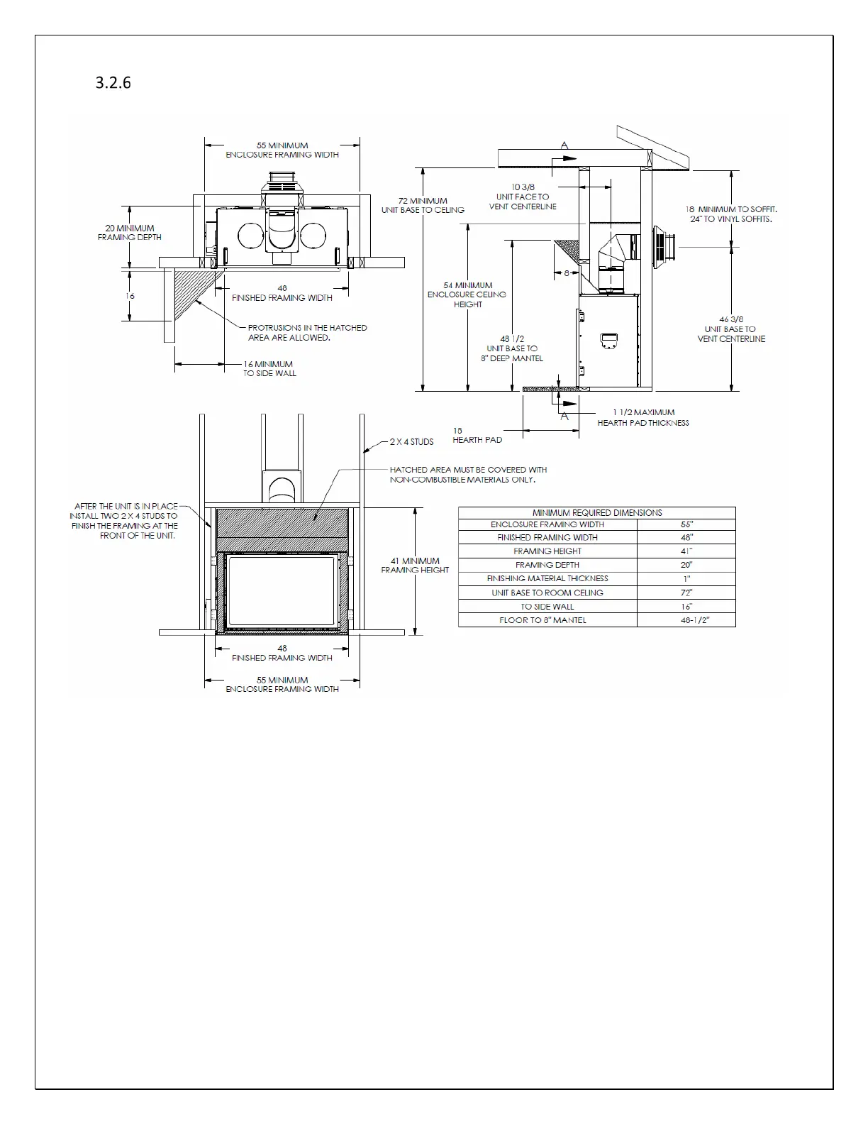
Fireplace Dimensions and Clearances
Figure 3-13 Overall Fireplace Dimensions
Caution: The distance from floor level to the centerline of the vent cap is based on Simpson DuraVent GS components. If
using vent components of another brand, do not assume that the measurement given here is applicable. Verify the distance
to the centerline of vent cap by measuring the components you are using.
Note: For every 1” this fireplace is raised off the floor, the non-combustible hearth protection pad may be reduced by 2”. If
this fireplace is raised more than 6” off the floor, no hearth protection pad is required.
Note: Consult the R-Value Table for reference

Related product manuals