EasyManua.ls Logo

Mendota ML39-PF2 - Planning the Installation

Mendota ML39-PF2
80 pages
Print Icon
To Next Page IconTo Next Page
To Next Page IconTo Next Page
To Previous Page IconTo Previous Page
To Previous Page IconTo Previous Page
Loading...
85-03-00955 Page| 14
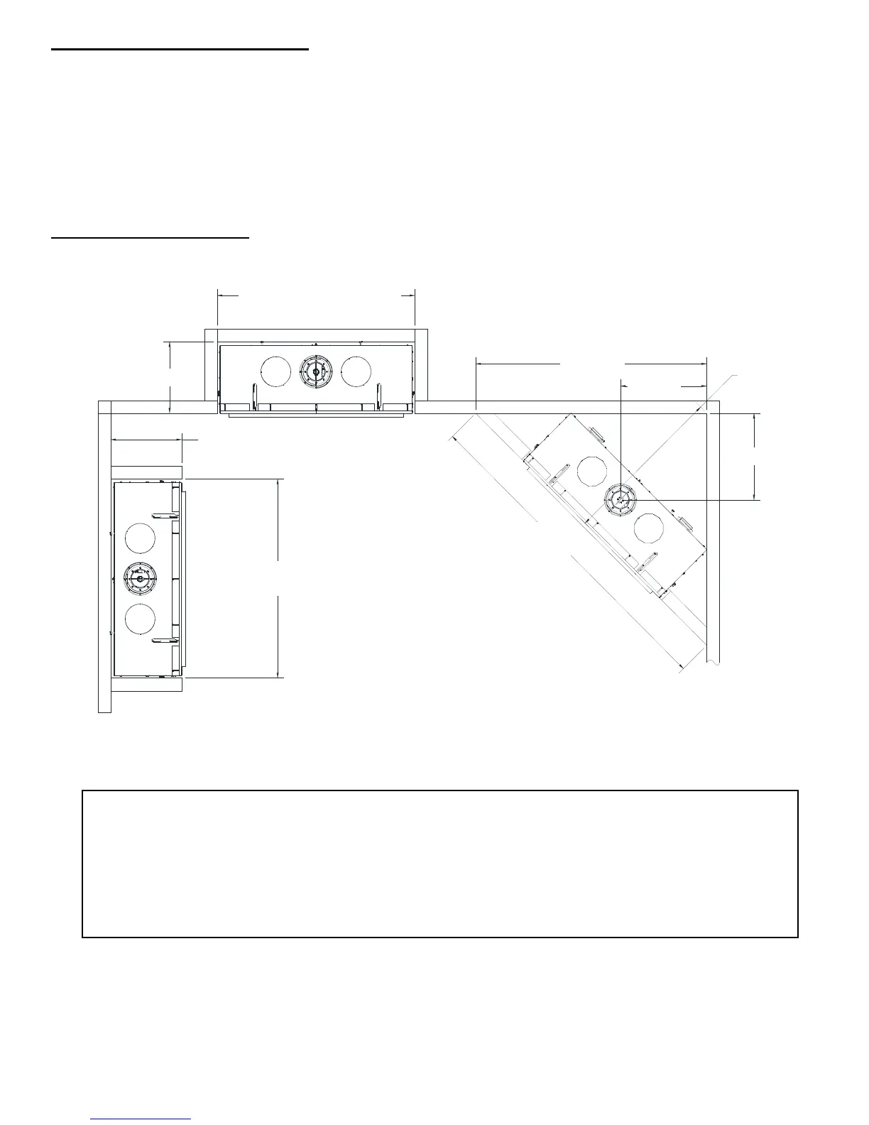
59 7/16"
21 5/8"
48 1/4"
ROUGH FRAMING WIDTH
19 1/2
84"
RO
U
G
H F
R
AM
I
NG
WI
D
TH
21 5/8"
48 1/4"
ROUGH FRAMING WIDTH
19 1/2"
ROUGH FRAMING DEPTH
42"
PLANNING THE INSTALLATION
When planning on appliance installation, it is necessary to determine the following information before installing:
Where the appliance is to be installed.
The vent system configuration to be used.
Gas supply piping.
Electrical Wiring.
Framing and finishing details.
Hearth Protection Pad Requirements.
Whether accessories such as a wall switch, remote control, and ceiling fan are desired.
Selecting Appliance Location
When selecting a location for your appliance, it is important to consider the required clearances to adjacent side walls.
WARNING
FIRE RISK- ODOR RISK
Do NOT install this fireplace directly on carpeting, vinyl or any combustible material other than wood. Con-
struct chase to all clearance specifications in manual.
Locate and install appliance to all clearance specifications in manual.
ODOR RISK: DO NOT INSTALL ANY CEMENT BOARDS OF OTHER MATERIALS THAT CONTAIN
POLYMER BASED FIBERS OR OTHER POLYMER MATERIALS.

Table of Contents

Related product manuals