EasyManua.ls Logo

Mendota ML60 - Lame Appearance

Mendota ML60
96 pages
Print Icon
To Next Page IconTo Next Page
To Next Page IconTo Next Page
To Previous Page IconTo Previous Page
To Previous Page IconTo Previous Page
Loading...
85-03-01147 ML60 Page 71
5.14 AIR SHUTTER CONTROL AND FLAME APPEARANCE
During initial installation, the air shutter opening should be checked to be certain that the shutter is set correctly at 1/8" open
for natural gas and 1/2" minimum open for L.P. gas. NOTE: For altitudes above 5,000’, some variations may be required.
Be sure burner and logs are properly installed. After log set has been properly installed, adjustments to the air shutter shall be
made for final flame appearance. These small shutter adjustments can be made by the following procedure:
NOTE: All adjustments to the air shutter setting must be made by a qualified installer, service agency, or the
gas supplier. Very small changes in shutter settings make major changes in flame appearance.
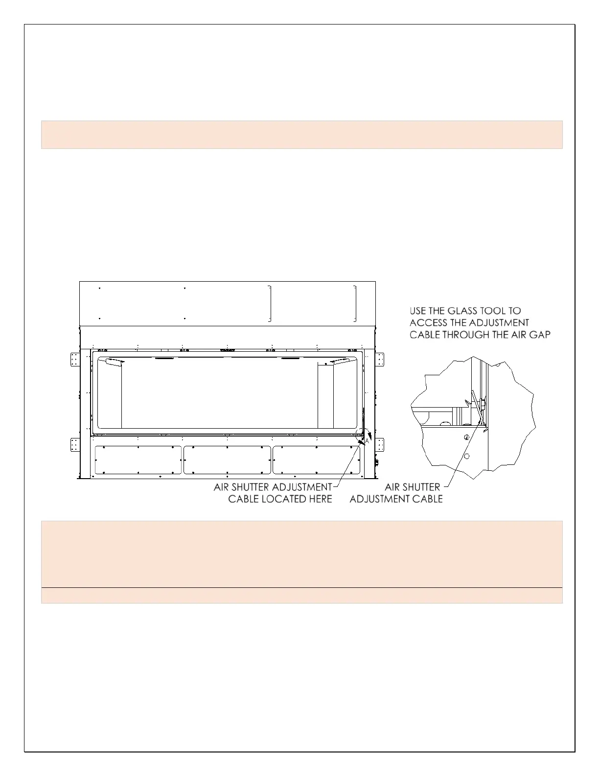
The burner air shutter adjustment cable is located on the right side of the fireplace. It is located at the bottom of the right side
air gap. The shutter cable can be accessed through the air gap and adjusted using the glass latch tool. To open or close the air
shutter insert the glass latch tool tip in the ring terminal’s ring hole. Push the cable to close the air shutter or pull on the cable
to open the air shutter.
1. If flame is too blue, close air shutter in small 1/8" increments until flame turns desired realistic yellow. Use glass latch
tool to hook end and slide control.
2. If flame is causing soot on viewing glass, open air shutter fully until sooting stops. Continue burning unit with air
shutter fully open for four to six hours until all internal deposited soot has burned off.
3. Once deposited soot has disappeared, close air shutter in increments of 1/8”.
LPG Air shutter settings hint: A properly adjusted air shutter setting will yield burner flames that have an
approximate 2 high blue color base. If yellow colored flames are starting at burner level, air shutter is
closed too far and will create soot. If you observe that the flame is yellow starting very close to or at the
burner surface level, open air shutter. Also, if a log or part of a log is suspended and hanging inside a yellow
portion of the flame, soot can form easily on the part of the log that is inside the yellow flame area.
IMPORTANT: Try each new shutter setting approx. ½ hr. before mak ing additional changes.

Related product manuals