EasyManua.ls Logo

Meyer E-58H - Page 10

Meyer E-58H
78 pages
Print Icon
To Next Page IconTo Next Page
To Next Page IconTo Next Page
To Previous Page IconTo Previous Page
To Previous Page IconTo Previous Page
Loading...
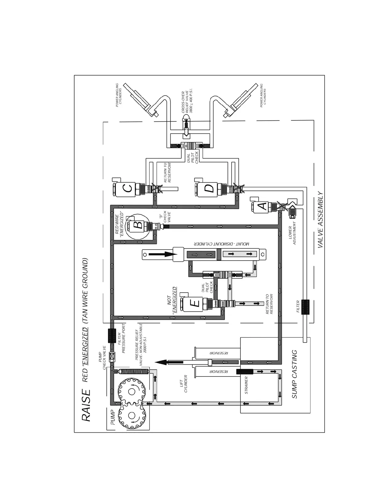
E-88 Raise, Motor and “B” Solenoid
-8-
FIGURE 1-3

Other manuals for Meyer E-58H

Related product manuals