EasyManua.ls Logo

Meyer E-58H - Page 11

Meyer E-58H
78 pages
Print Icon
To Next Page IconTo Next Page
To Next Page IconTo Next Page
To Previous Page IconTo Previous Page
To Previous Page IconTo Previous Page
Loading...
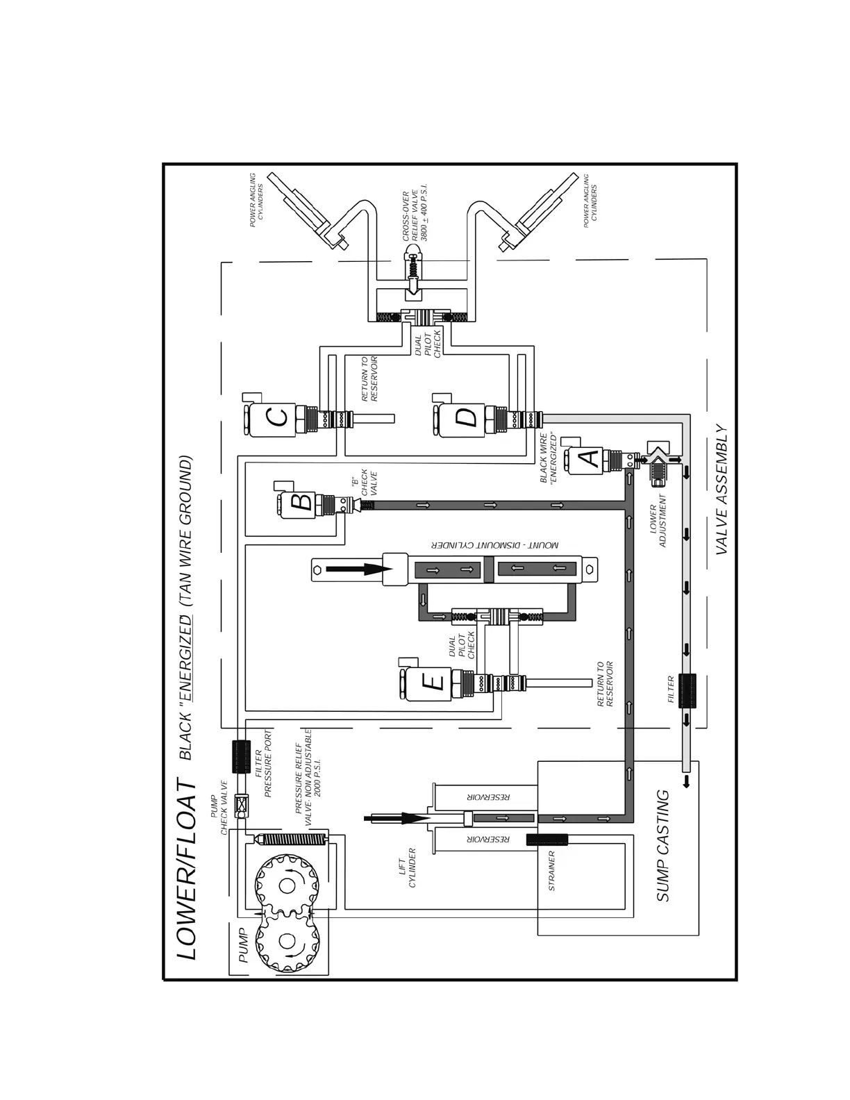
E-88 Lower, “A” Solenoid
-9-
FIGURE 1-4

Other manuals for Meyer E-58H

Related product manuals