EasyManua.ls Logo

Miele T1515 - 4.6 Heater Bank Assembly

Miele T1515
56 pages
Print Icon
To Next Page IconTo Next Page
To Next Page IconTo Next Page
To Previous Page IconTo Previous Page
To Previous Page IconTo Previous Page
Loading...
Technical Information
24
T1500 Series Clothes Dryers
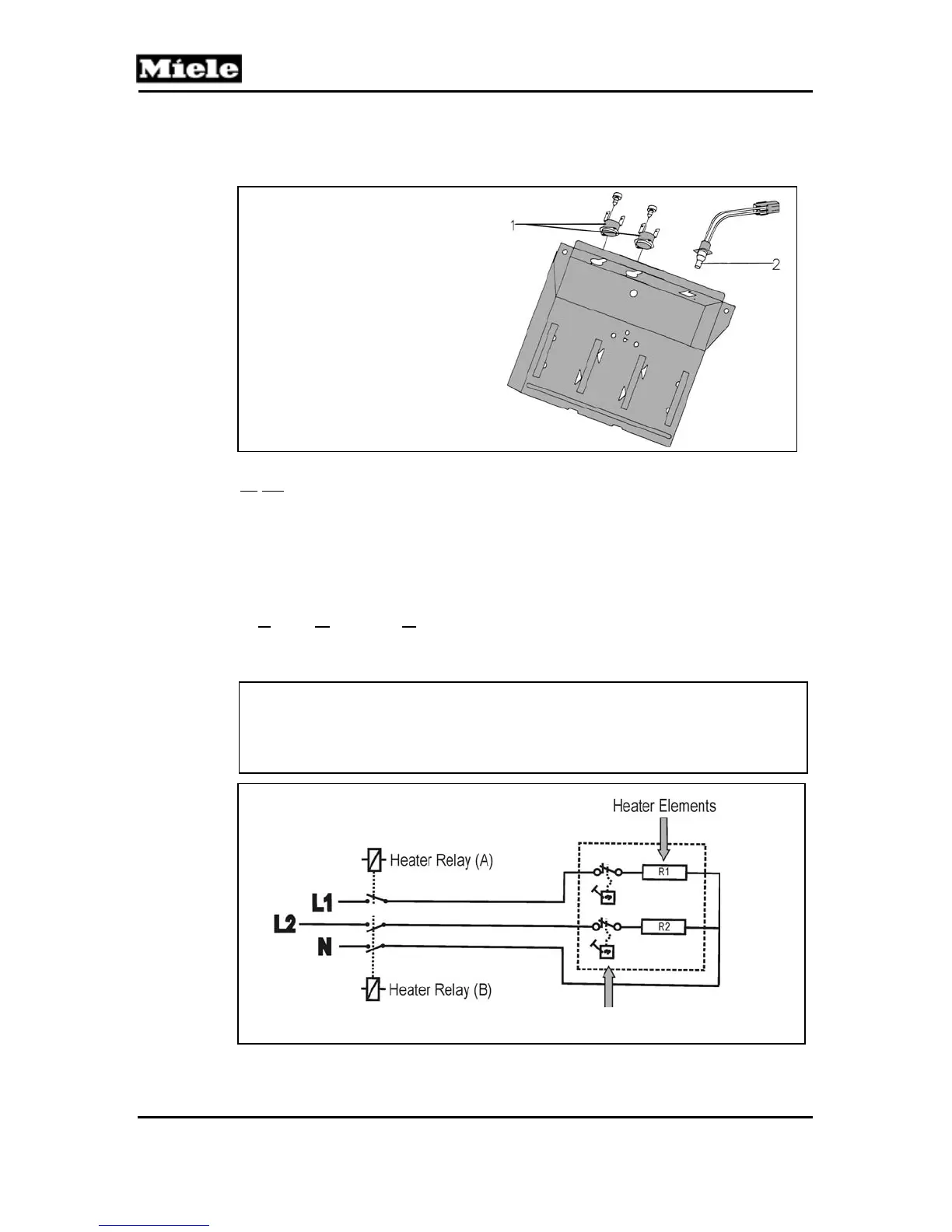
1 – Temperature Limiters (2)
2 - Temperature Sensor (NTC)
(T1576 Only) (100k.Ohm@ 75
0
F)
4.6 Heater Bank Assembly
Figure 4-5: Heater Bank Assembly (T1576 shown; all other T1500 series dryers
do not have a Temperature Sensor in the Heater Bank)
The Heater Bank Assembly is comprised of two (2) electrically
isolated Heater Elements. Temperature Limiters are secured to the
top of the assembly and are electrically in series to the Heater
Elements. The Temperature Limiters are non-resettable SOD
(Single Operation Device) devices in accordance with product
approvals.
Note
The T1576 Dryer has an additional NTC sensor installed at the top
of the Heater Bank Assembly, next to the Thermostats (Figure 5).
Figure 4-6: Heater Circuit
Temperature Limiters

Table of Contents

Related product manuals