EasyManua.ls Logo

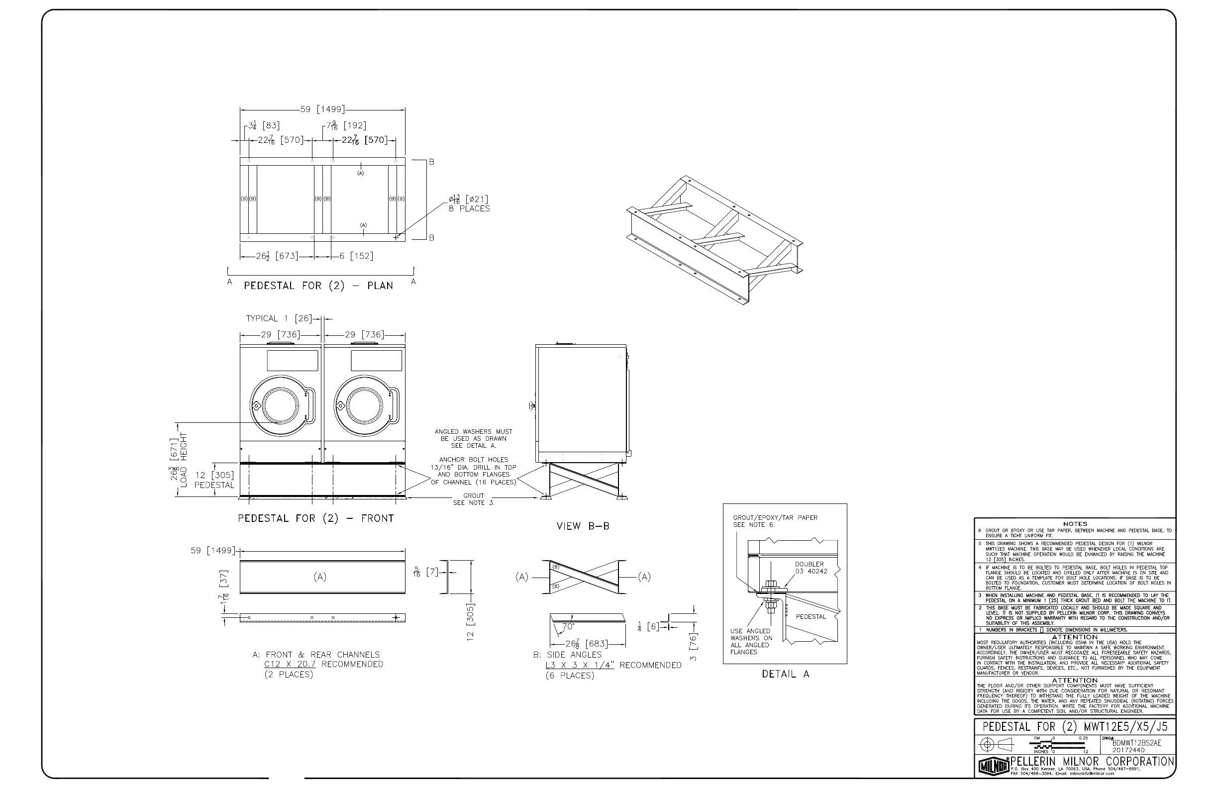
Milnor MCT12E5 - Dimensional Drawing - Pedestal for (2) MWT12 E5;X5;J5

Milnor MCT12E5
121 pages
Print Icon
To Next Page IconTo Next Page
To Next Page IconTo Next Page
To Previous Page IconTo Previous Page
To Previous Page IconTo Previous Page
Loading...
111

Table of Contents

Related product manuals