EasyManua.ls Logo

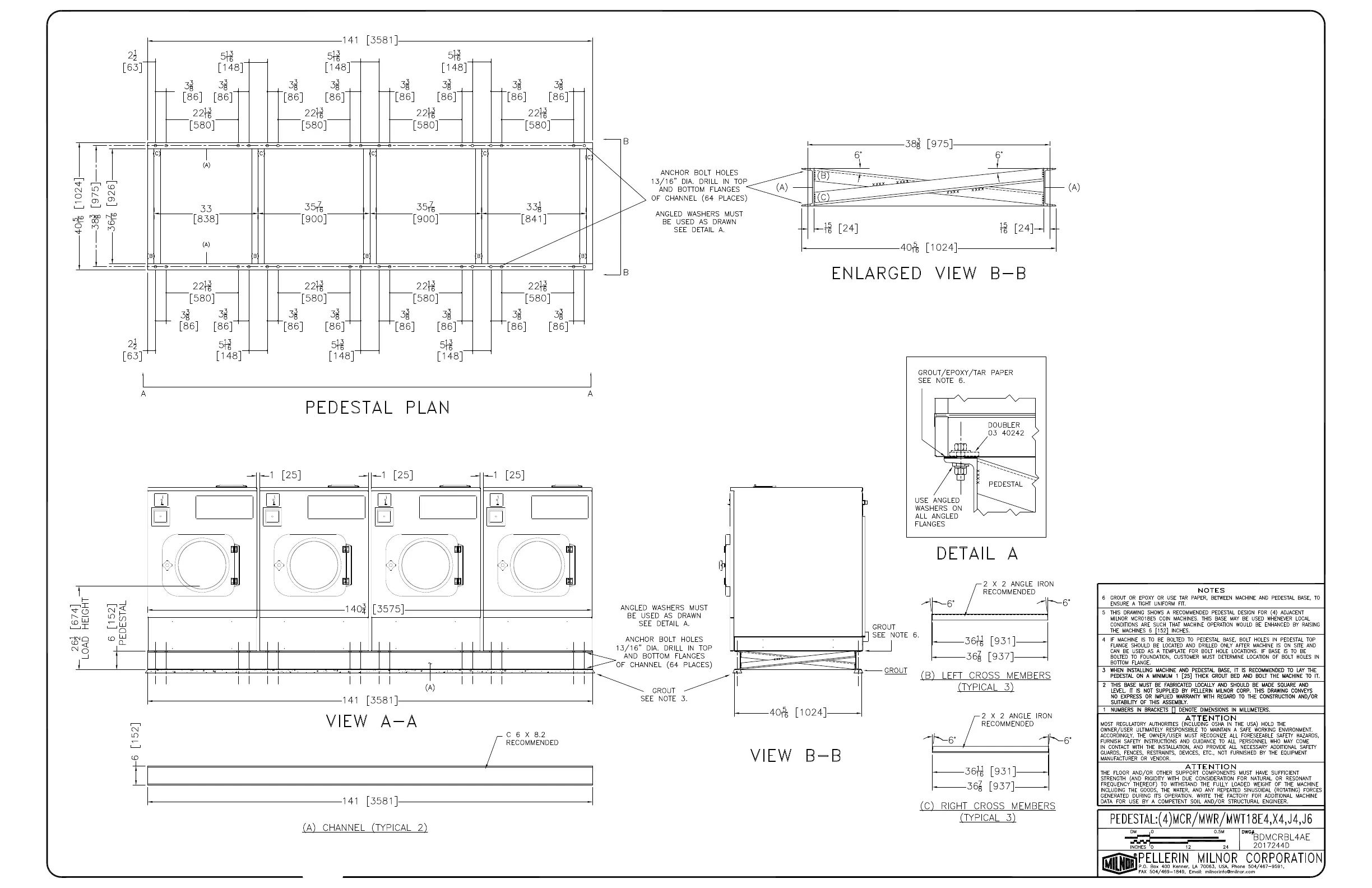
Milnor MCT12E5 - Dimensional Drawing - Pedestal for (4) MCR;MWT;MWT18 E4,X4,J4,J6

Milnor MCT12E5
121 pages
Print Icon
To Previous Page IconTo Previous Page
To Previous Page IconTo Previous Page
Loading...
117

Table of Contents

Related product manuals