EasyManua.ls Logo

Mitsubishi Electric Melsec-Q172DCPU - Specifications of Equipment and Settings; Name of Parts for CPU Module

Mitsubishi Electric Melsec-Q172DCPU
264 pages
To Next Page IconTo Next Page
To Next Page IconTo Next Page
To Previous Page IconTo Previous Page
To Previous Page IconTo Previous Page
Loading...
2 - 26
2 SYSTEM CONFIGURATION
2.5 Specifications of Equipment and Settings
2.5.1 Name of parts for CPU module
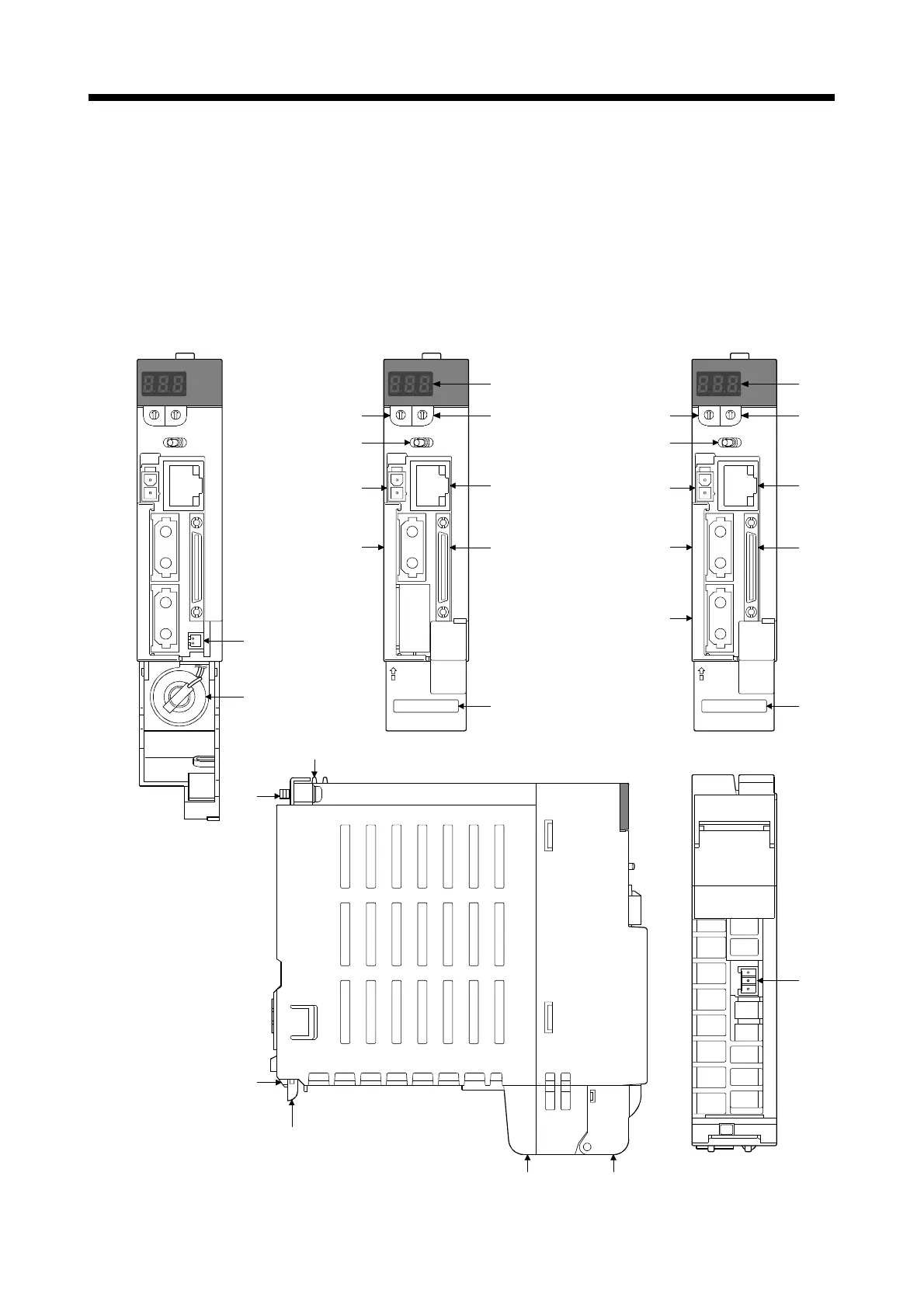
This section explains the names and setting of the module.
(1) Name of parts
(a) Q173DSCPU/Q172DSCPU
17)
BottomSide face
Front face of Q172DSCPU Front face of Q173DSCPU
0
8
C
4
1
2
3
5
6
7
9
A
B
D
E
F
0
8
C
4
1
2
3
5
6
7
9
A
B
D
E
F
12
SW
Q172DSCPU
CN1
RIO
FRONT
EMI
PERIPHERAL I/F
STOP RUN
EXT.I/F
PULL
0
8
C
4
1
2
3
5
6
7
9
A
B
D
E
F
0
8
C
4
1
2
3
5
6
7
9
A
B
D
E
F
12
SW
Q173DSCPU
CN1CN2
RIO
FRONT
EMI
PERIPHERAL I/F
STOP RUN
EXT.I/F
PULL
15)
12)
11)
9)
19)18)
0
8
C
4
1
2
3
5
6
7
9
A
B
D
E
F
0
8
C
4
1
2
3
5
6
7
9
A
B
D
E
F
12
SW
Q173DSCPU
CN1CN2
EMI
PERIPHERAL I/F
STOP RUN
EXT.I/F
20)
10)
4)
6)
2)
7)
1)
3)
8)
5)
14)
16)
4)
6)
2)
1)
3)
8)
5)
14)
16)
With battery cover open

Table of Contents

Related product manuals