EasyManua.ls Logo

Monogram ZET1PL1SS - Schematics and Wiring Diagrams

Monogram ZET1PL1SS
53 pages
Print Icon
To Next Page IconTo Next Page
To Next Page IconTo Next Page
To Previous Page IconTo Previous Page
To Previous Page IconTo Previous Page
Loading...
– 50 –
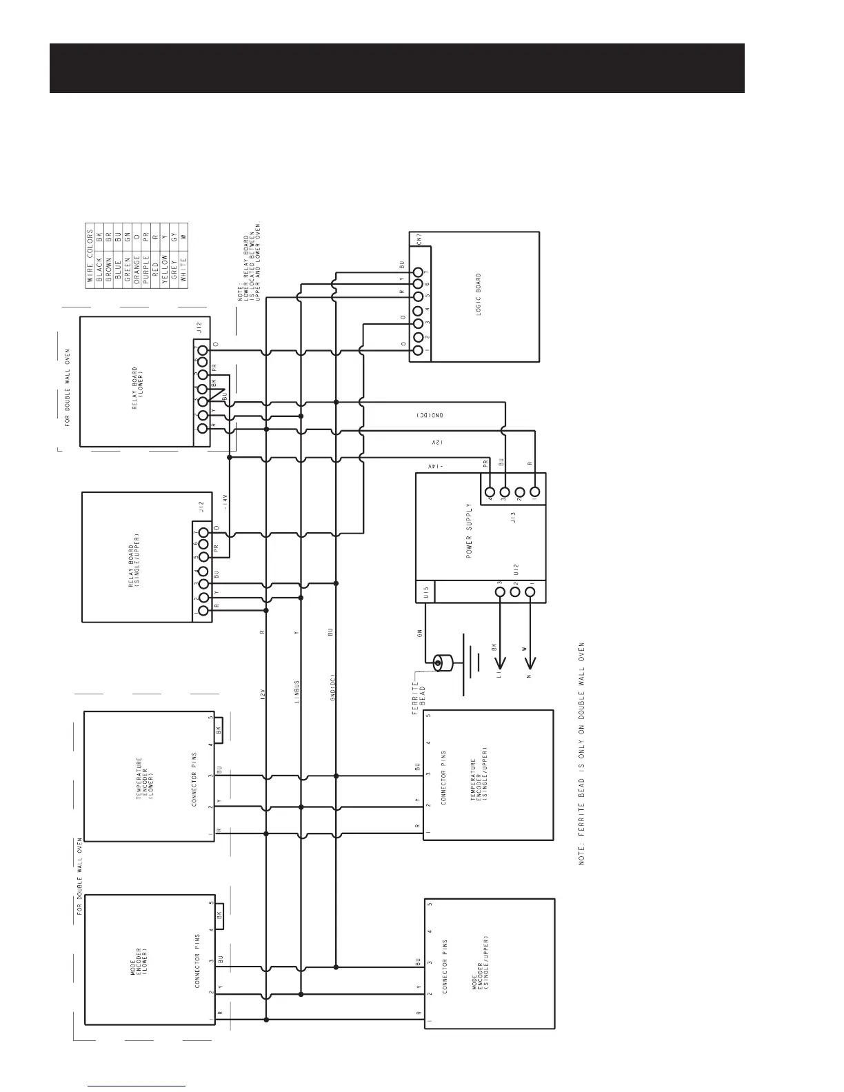
Schematics and Wiring Diagrams
WARNING: Disconnect electrical power before servicing.
Caution: Label all wires prior to disconnection. Wiring errors can cause improper and dangerous operation. Verify
operation after servicing.
(Continued Next Page)
*LINbus: (Local Interconnect Network) : A communication network comprised of
a LIN master and one or more LIN slaves. In this wall oven, the Logic board acts as
the LIN master while the Mode encoder, Temp encoder, and Relay board are the
LIN slaves. The Logic board sends messages to the other components based on a
prede ned list of commands.
All the components receive a signal to perform a speci c task, but only the
appropriate component will act on the message and respond accordingly. The
component which acts on the speci c is based on programming in the control.
Since the LINbus signal is a digital control signal, special equipment, such as an
oscilloscope, is required to measure it.
LOW VOLTAGE AND COMMUNICATION

Related product manuals