EasyManua.ls Logo

MSI A320M-A PRO - 元件總覽

MSI A320M-A PRO
148 pages
Print Icon
To Next Page IconTo Next Page
To Next Page IconTo Next Page
To Previous Page IconTo Previous Page
To Previous Page IconTo Previous Page
Loading...
7
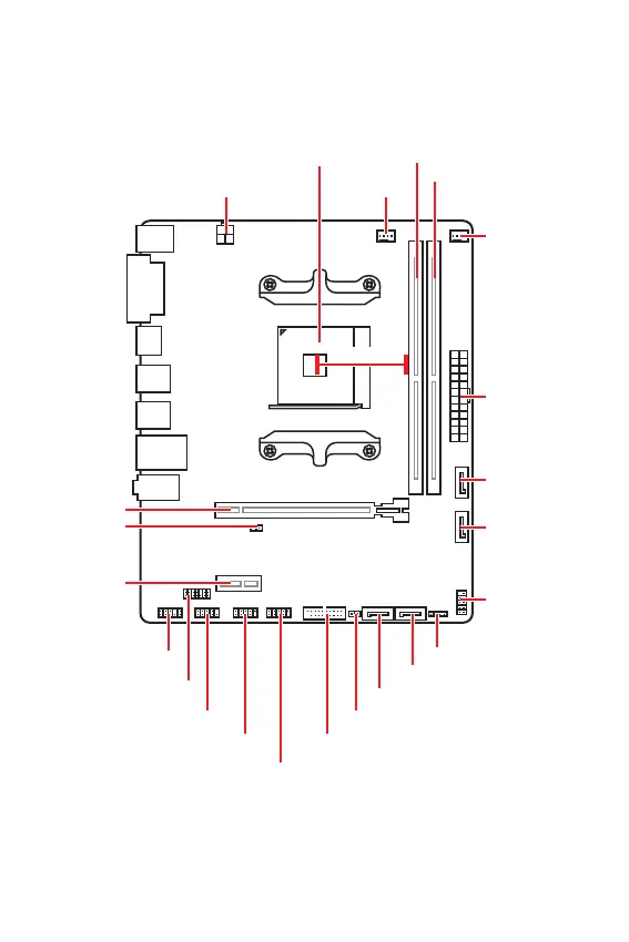
󷄁󴍆 󱯯󱠁󶱳󸌶
󱯯󱠁󶱳󸌶
PCI_E1
JBAT1
PCI_E2
ATX_PWR1
JCOM
JUSB2
JUSB3
JUSB1
JCI1
JFP1
SATA4
SATA3
SATA2
SATA1
JFP2
JAUD1
JTPM1
󷉥󳐄
CPU_PWR1
DIMMA1
DIMMB1
SYS_FAN1
CPU_FAN1
52.00mm*
󳗔󱛉󳘕󱵰󴉷󸶀󵷜󳳨󴞙󱛷󹠊󵷜󸨩󹨪󾖜

Table of Contents

Related product manuals