EasyManua.ls Logo

MSI A320M-A PRO - Компоненты Материнской Платы

MSI A320M-A PRO
148 pages
Print Icon
To Next Page IconTo Next Page
To Next Page IconTo Next Page
To Previous Page IconTo Previous Page
To Previous Page IconTo Previous Page
Loading...
7
 

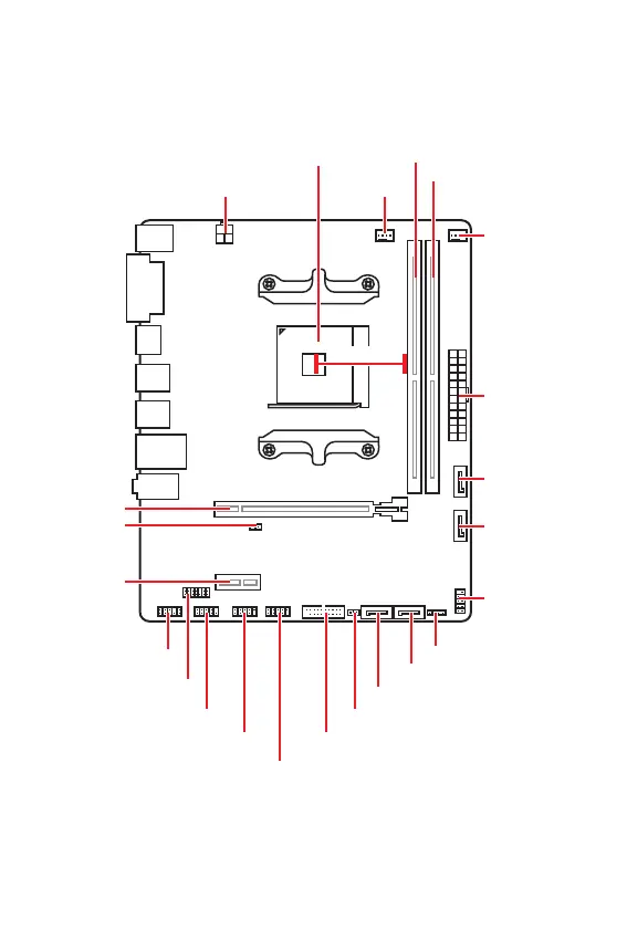
PCI_E1
JBAT1
PCI_E2
ATX_PWR1
JCOM
JUSB2
JUSB3
JUSB1
JCI1
JFP1
SATA4
SATA3
SATA2
SATA1
JFP2
JAUD1
JTPM1


CPU_PWR1
DIMMA1
DIMMB1
SYS_FAN1
CPU_FAN1



Table of Contents

Related product manuals