EasyManua.ls Logo

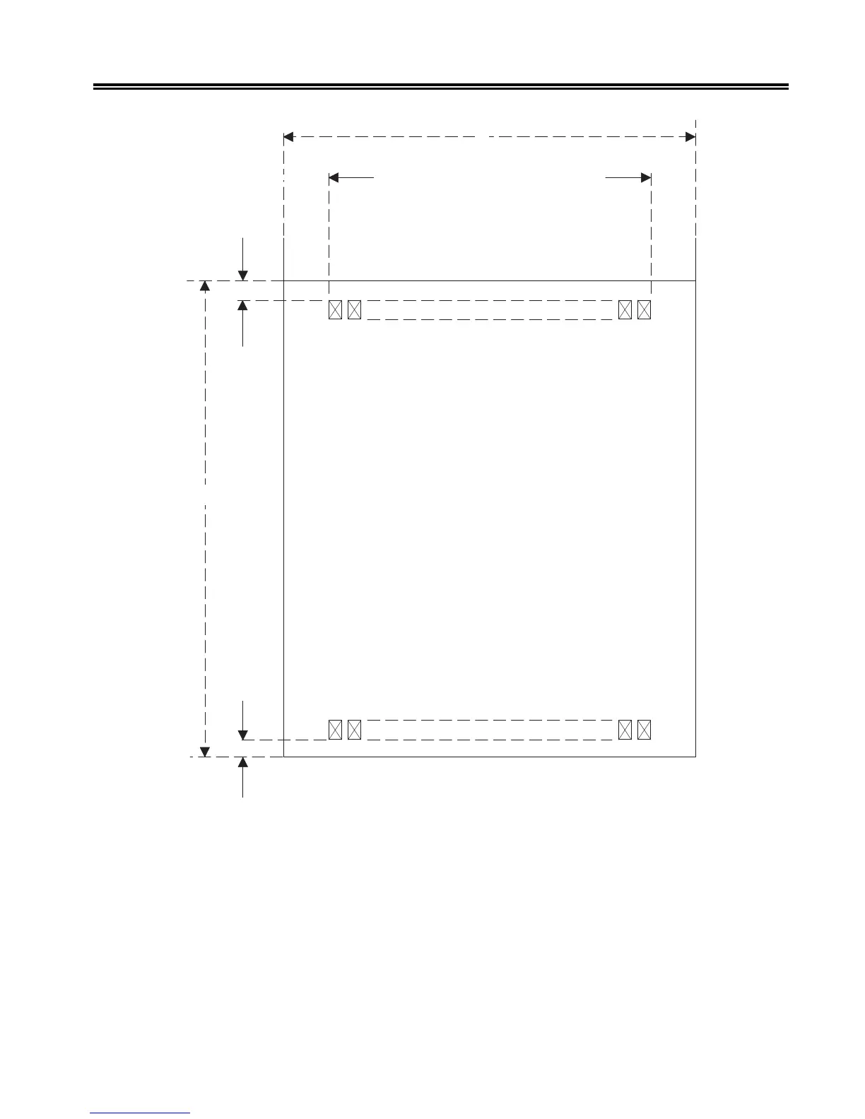
MTX 1330-X02 - Figure 2-13. Print Positioning - Single Part Forms

MTX 1330-X02
183 pages
Print Icon
To Next Page IconTo Next Page
To Next Page IconTo Next Page
To Previous Page IconTo Previous Page
To Previous Page IconTo Previous Page
Loading...
701333-004 2-15
Preparing to Operate the 1330
D
C
E
F
B
A
Figure 2-13. Print Positioning - Single Part Forms

Table of Contents