EasyManua.ls Logo

Munters drycool hd - Page 28

Munters drycool hd
29 pages
Print Icon
To Next Page IconTo Next Page
To Next Page IconTo Next Page
To Previous Page IconTo Previous Page
To Previous Page IconTo Previous Page
Loading...
Appendix: Unit Specific Information 26
DryCool HD Operator and Maintenance Manual P00960167-1
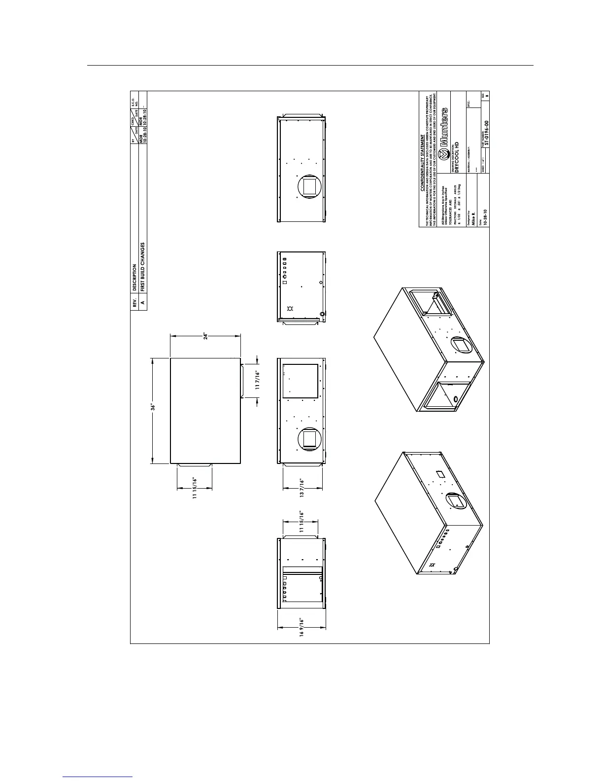
Figure 10. Dimensional Drawing

Related product manuals