EasyManua.ls Logo

Munters MX2 40 - Dimensions (Unit Without Process Fan)

Munters MX2 40
68 pages
Print Icon
To Next Page IconTo Next Page
To Next Page IconTo Next Page
To Previous Page IconTo Previous Page
To Previous Page IconTo Previous Page
Loading...
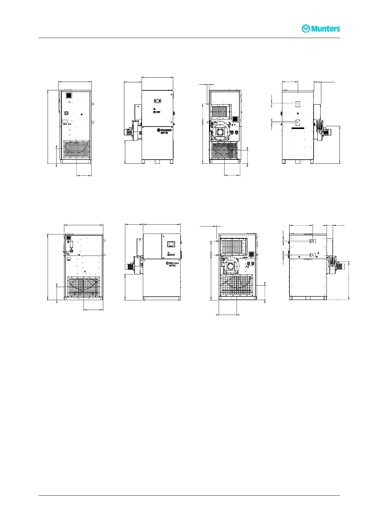
8.3.2 Dimensions(unitwithoutprocessfan)
O
P
K
B
C
Q
R
F
A
G
E
M
N
T
S
U
V
Figure 8.5 M 30S without process fan
B
K
C
O
P
F
R
Q
G
T
A
S
E
M
N
V
U
Figure 8.6 MX² 35–95S without process fan
190TEN–108 9–G1412
Technicalspecification
55

Table of Contents

Related product manuals