EasyManua.ls Logo

Nautel NV5 - Page 198

Default Icon
228 pages
Print Icon
To Next Page IconTo Next Page
To Next Page IconTo Next Page
To Previous Page IconTo Previous Page
To Previous Page IconTo Previous Page
Loading...
Issue 3.2 2014-12-10 SD-22
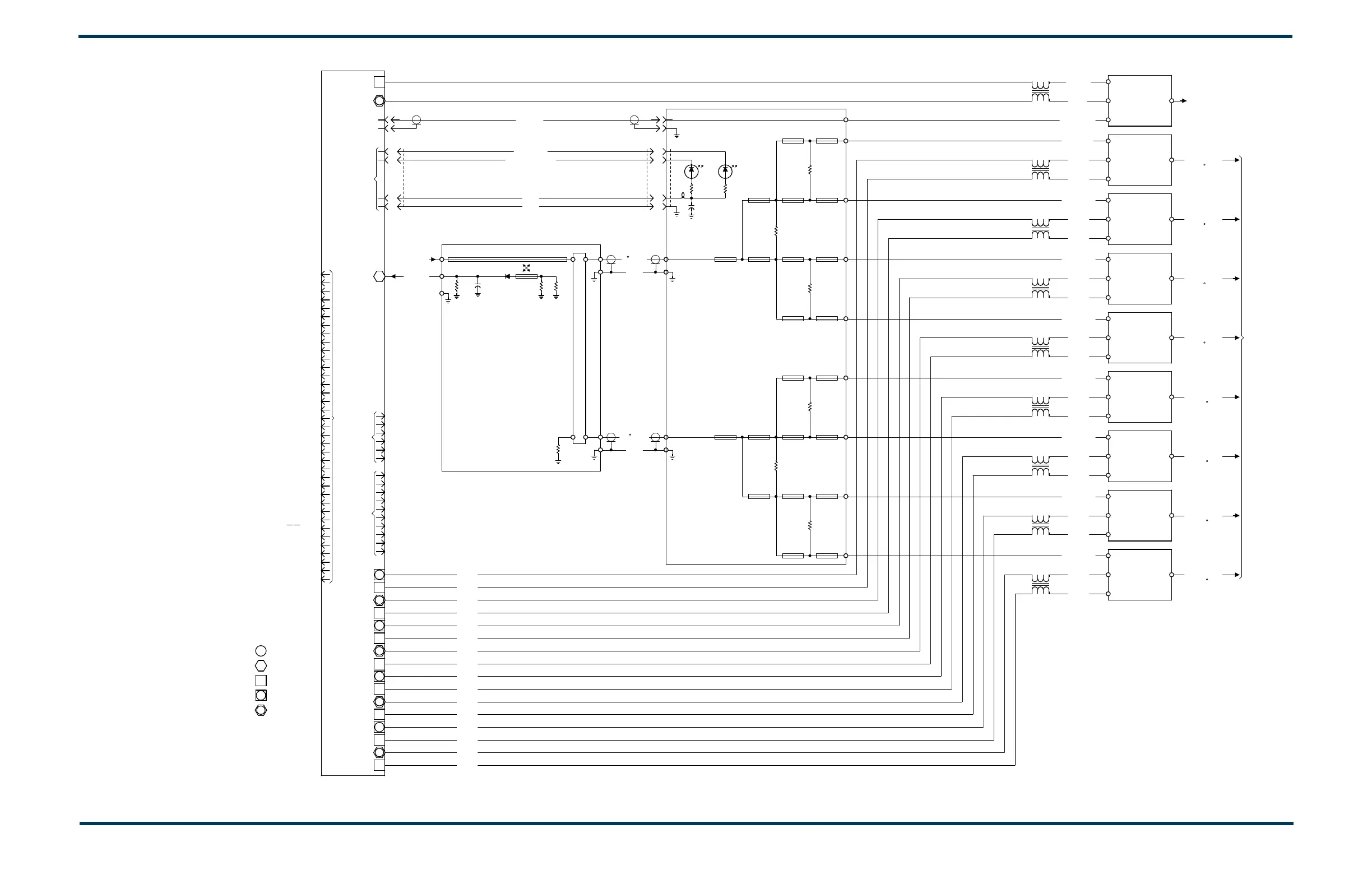
Figure SD-22: NAA56/01D RF Power Module (Sheet 1 of 2)
4
9
7
3
P1
J4
*
D L
J8
DS1:A
PWB
*
221
R2
*
*
*
*
*
*
*
*
*
*
*
*
L8
L6
L5
L4
L3
L1
L9
A
F
A
B
F
A
A
C
6
2
5
1
J1
274
R12
U1
C K
L1
FLT
*
A11
G
*
*
*
*
L7
L2
B
F
B
A
B
F
A
B
F
A
F
B
F
F
A
B
C
C
C
C
C
C
E
F N
F
A
B
B
C
C
SCK 10
14
26
SPARE
SPARE
23
11
33
17
27
13
GND
P1GND
85
87
86
A4
A3
A1
GND
GND
83
84
+5V
20
77
79-82
37-56
PART OF
A10
8
7
6
3
3
2
3
2
1
1
# MAIN AC FAIL -
RF DRIVE SAMPLE
28
IPA POWER SAMPLE
# MODULE STATUS
8
16
IPA V SAMPLE
31
GND
GND
35
36
# RESET -
MISO
SCK
1
3
+5V
GND
6
B
A
IPA PWR
1
IPA O/P PWR
4
W1P1
1
5
9
BIAS 8
BIAS 7
BIAS 6
PA V 6
PA V 5
PA V 4
BIAS 3
BIAS 2
BIAS 1
PA V 1
A12
PART OF
GND
GND
GND
0 DRIVE
4
221
R1
W1P2
1
*
R9
100
40W
PART OF
*
R6
100
40W
*
DS1:B
E
D
R4
100
30W
BIAS 8
PA V 8
PA DRIVE 8
BIAS 7
PA DRIVE 6
BIAS 5
PA V 5
PA DRIVE 5
BIAS 4
PA V 4
PA DRIVE 4
BIAS 3
PA V 3
PA DRIVE 3
BIAS 2
PA DRIVE 1
IPA RF DRIVE
IPA V
IPA BIAS
A8
(-90 )
A7
PA 6
(-90 )
PA 5
(-90 )
A4
PA 4
(0 )
A3
(0 )
A2
PA 1
(0 )
IPA
TO SHEET 2
MISO
MOSI
12
21
15
29
24
A2
88
30
25
-15V
A0
22
57-76
78
4
4
5
4
2
18
1
PA V SAMPLE
5
32
34
19
MOSI
4
2
SAMPLE
5
3
J3 W3P1
PA V 8
PA V 7
BIAS 5
BIAS 4
PA V 3
PA V 2
COMBINER PWB
*
C1
0.001
3320
R13
+5V
221
R11
C7
0.1
5
R
3
W3P2 J9
*
PWR
H
G
R7
100
30W
R5
100
30W
B
C
J
A
BIAS 6
PA V 6
PA V 7
PA DRIVE 7
PA V 2
PA DRIVE 2
BIAS 1
PA V 1
PA 8
(-90 )
A6
PA 7
A5
PA 3
(0 )
PA 2
A1
A9
1N5711
CR1
50
250W
R1
M F
R8
100
30W
DENOTES TB4
DENOTES TB3
DENOTES TB1
# RESET -
BIAS CURRENT -
INT TX
/RX
# PWR SUPPLY INHIBIT A +
# PS AC FAIL A -
# PS TEMP B -
# PS FAIL B -
RF DRIVE
FAN VOLTS +
IPA VOLTS +
PA VOLTS A +
INTERFACE PWB
# POWER -
RF DRIVE
-90 DRIVE
* DENOTES A MICRO-STRIP TRANSMISSION LINE OF SPECIFIC
PA O/P PWR 8
PA O/P PWR 5
PA O/P PWR 4
PA O/P PWR 3
IPA O/P PWR
S2060204 V1
DENOTES TB5
DENOTES TB2
BIAS CURRENT +
# PWR SUPPLY INHIBIT B +
# PS TEMP A -
INT TX/RX
# PS AC FAIL B -
RF DRIVE
# PS FAIL A -
# PA VOLTS INHIBIT -
PA VOLTS B +
FAN VOLTS +
POWER MODULE
# MODULE FAULT -
MODULE SPLITTER
LENGTH AND CHARACTERISTIC IMPEDANCE.
PA O/P PWR 6
PA O/P PWR 7
PA O/P PWR 2
PA O/P PWR 1
# PS MODULE PRESENT A -
# PS MODULE PRESENT B -

Related product manuals