EasyManua.ls Logo

nilan CTS 600 - Review of the Thermometer Sensors

nilan CTS 600
25 pages
Print Icon
To Next Page IconTo Next Page
To Next Page IconTo Next Page
To Previous Page IconTo Previous Page
To Previous Page IconTo Previous Page
Loading...
May be subject to change page 5 af 25
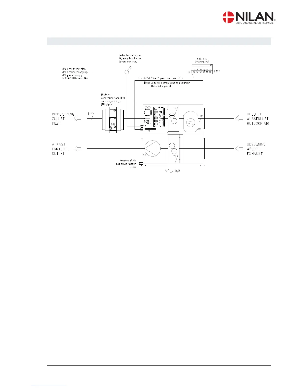
Review of the thermometer sensors
Figure 2: Thermometer sensors
Explanation for figure 2:
T1 - is the thermometer sensor for the fresh air and should be placed at the north side of the
building.
T2 - is the thermometer sensor for the inlet air at the fan (without heating surface).
T5 - shows the temperature of the condenser.
T6 - shows the temperature of the evaporator.
T7 - is the thermometer sensor for the inlet air after a heating surface.
T10 - is the thermometer sensor for the exhaust air in a room (accessory).
T15 - is the thermometer sensor in the CTS 600 panel.
The temperature of the sensors can be read in the “Show data” menu.

Other manuals for nilan CTS 600

Related product manuals