EasyManua.ls Logo

Nimos Micro-Trac - Operation Controls

Nimos Micro-Trac
27 pages
Print Icon
To Next Page IconTo Next Page
To Next Page IconTo Next Page
To Previous Page IconTo Previous Page
To Previous Page IconTo Previous Page
Loading...
Usermanual NIMOS Micro-Trac Page 10
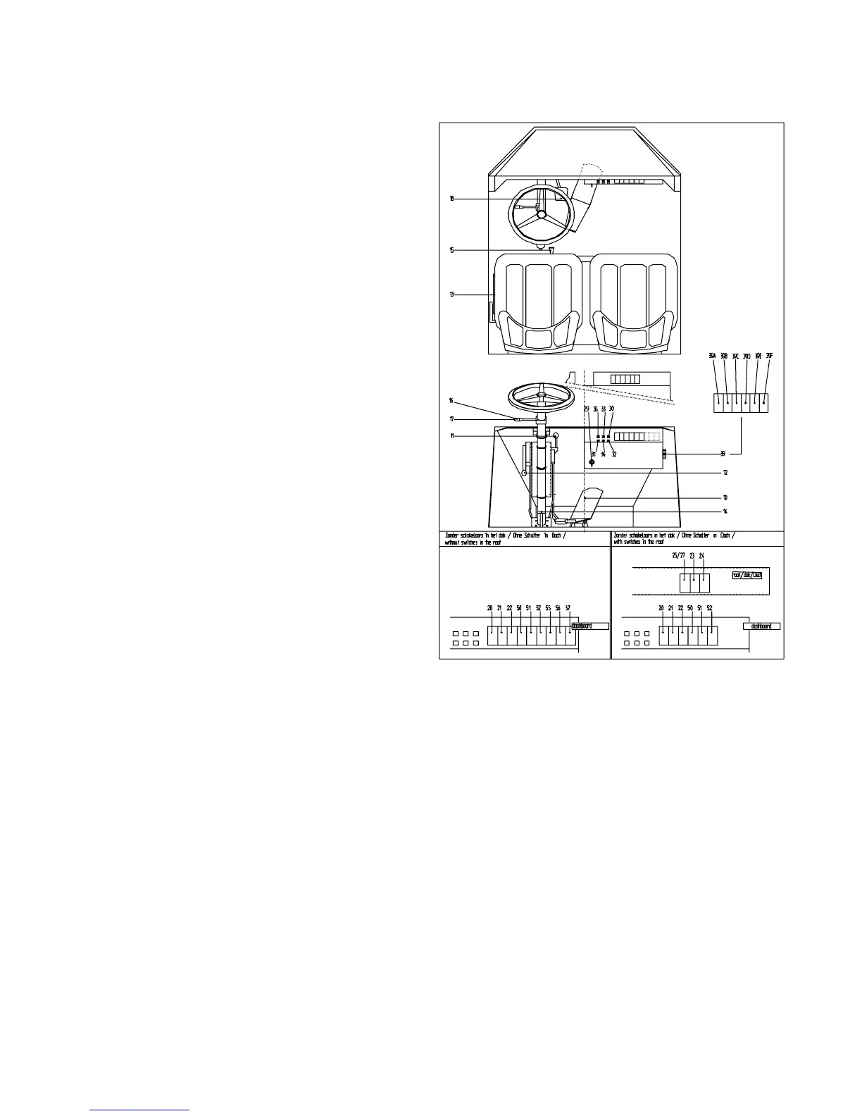
3 Operation controls
Nr. Description.
10. Drive pedal (forward/rearward)and speed control
11. Throttle lever36-9211
12. Lever high and low gearingdrawing
13. Parking brake70-0371
14. Differential lock pedaldrawing
15. Choke-button36-9134
16. Switch direction indicator35-2215
17. Switch horn35-2215
18. Brake pedal
20. Switch lighting35-6404
21. Switch alarm35-6418
22. Switch tipping platform35-6420
23. Switch windscreen wiper35-6402
24. Switch windscreen washer35-6422
25. Switch rotary beacon35-6418
26. Switch blower35-6418
27. Switch work lamp35-6418
29. Starting switch (key)
b
35-2242
30. Maximum engine temperature
31. Air filter Renew air filter and reset the switch.
32. Charging current No charging current. Stop machine.
33. Fuel Little fuel in the tank: fill tank.
34. Oil pressure.
35. Glowing Cold engine pre-heats till the lamp goes out.
36. Control lamp direction indicator.
39. Fusebox35-2247
39A. 10A (hydraulic)35-2241
39B. 10A (horn and rearward driving light)35-2241
39C. 10A (windscreen wiper and blower)35-2241
39D. 10A (direction indicators, radio)35-2241
39E. 10A (lighting R.)35-2221
39F. 10A (lighting L.)35-2241
50. Switch hydraulic PTO (SA/front)35-6418
51. Switch hydraulic DA (front)35-6422
52. Switch hydraulic front lift (SA)35-6420
55. Switch hydraulic PTO (SA/rear)35-6418
56. Switch hydraulic DA (rear)35-6422
57. Switch hydraulic rear lift (SA)35-6420